Un Guide Pratique de l'Auteur d'Artifices d'Énergie libre :    Patrick J. Kelly

Le chapitre 13 : Artifices Douteux

Ce chapitre couvre un certain nombre d'artifices qui ne travailleront pas probablement, ou qui ont trop peu d'informations pratiques à la disposition pour aider des essais de réplication. Cette sélection, est évidemment, une question d'opinion.

La “Thestatika” de Paul Baumann.
Cet artifice est un exemple parfait d'un artifice d'énergie libre comme cela les pouvoirs lui-même et fournit des kilowatts de génération électrique de conduite principale d'excès. Il est dans cette section, pas parce que son opération est "douteuse" de toute façon, mais parce que le design n'a jamais été complètement révélé. Il a été développé par dernier Paul Baumann qui a fait partie d'une commune suisse qui n'est pas disposée à expliquer son opération. Ce “Thestatika” ou machine “Testatika” travaillent admirablement et ont un très de haute qualité de travail professionnel. Il a deux disques électrostatiques qui sont au départ tournés à la main et qui continuent alors à tourner conduit par le pouvoir produit par l'artifice.

Il y a des idées différentes quant à comment l'artifice opère. La commune suisse ne montre plus cet artifice aux gens comme ils ont la théorie "que l'humanité" n'est pas prête à avoir, ou utiliser l'énergie libre. Ils refusaient toujours de montrer ce qui est à l'intérieur des grands cylindres montés sur chaque côté de l'artifice. Le document de 1991 de D. A. Kelly fournit quelques commentaires très perspicaces de cet artifice. Il dit :

Le "Convertisseur de Suisse M-L" est un complètement symétrique, le convertisseur d'énergie de type d'influence qui est fondé essentiellement sur le générateur électrostatique Wimshurst avec son jumeau contre-faisant tourner des disques où les secteurs de papier d'aluminium métalliques produisent et portent de petites charges d'électricité à être conservée dans les condensateurs correspondus. Dans les unités Wimshurst, les brosses neutralisantes diagonales sur chaque disque opposé distribuent les charges correctes aux secteurs comme ils tournent, mais dans le convertisseur de M-L cela fait par une diode en cristal qui a une plus haute efficacité.

Deux brosses recueillent les charges accumulantes et les accomplissent au condensateur d'entreposage trouvé au sommet de cet artifice. L'artifice a deux aimants de fer à cheval avec les rouleaux correspondus et un aimant cylindrique creux comme faisant partie de la fonction de diode et de deux jarres Leyden qui servent apparemment de la fonction finale de condensateur pour le convertisseur. L'utilisation de composantes de qualité supérieures comme les contacts plaqués d'or, les électrodes de contrôle et les stades doubles de condensateur, assure la beaucoup plus haute conversion efficiencies que ces disponibles avec une machine Wimshurst. Les détails du prototype opérant sont :

1. Efficacité : l'unité est commencée à la main et nul autre pouvoir de contribution n'est exigé.
2. Puissance à la sortie constante : 300 volts à 10 ampères = 3 kilowatts.
3. Dimensions : 43.31" (1100 millimètres) larges, 23.62" (600 millimètres) grands, 17.72" (450 millimètres) profondément.
4. Poids : 44 livres (20 Kg).
5. Le fait de faire marcher la vitesse : 60 tr-min. (la faible vitesse - une révolution par seconde).

Les disques de jumeau sont faits d'en acrylique (le plastique) et les segments métalliques sont de l'acier, qui provoque l'Effet de Searle avec la conversion électromagnétique faite au bord des disques par les électro-aimants passifs. C'est un convertisseur idéal puisque tant le haut courant alternatif de voltage que l'ampérage de courant alternatif modéré peut être produit simultanément via deux circuits électriques séparés des disques. Les brosses conductrices conventionnelles enlèvent le haut courant alternatif de voltage pendant que les rouleaux d'électro-aimant de bord produisent l'ampérage utile. Quand les aimants de fer à cheval permanents avec les rouleaux sont utilisés, alors la puissance de sortie est améliorée à une mesure considérable comme montré par les susdites spécifications de production.

La propulsion de soi après le commencement de mains les disques sont accomplis par l'adoption du principe Poggendorff (un scientifique allemand des années 1870) dans lequel les brosses conductrices slanted produisent la rotation de soi dans les moteurs électrostatiques (pas les générateurs).

Le module en cristal spécial de diode fournit sans doute les fonctions doubles de règlement de fréquence et d'amplificateur de capacité - aux deux jarres Leyden - comme faisant partie du circuit de résonance électrique, puisqu'il est raccordé avec les rouleaux d'aimant de fer à cheval.

Cet artifice est composé trois séparent des circuits électriques :

1. La haute production de courant alternatif de voltage du jumeau les disques électrostatiques.
2. Un circuit d'ampérage de courant alternatif modéré fourni par les rouleaux d'aimant de fer à cheval doubles (l'Effet de Searle) comme le plus et moins les disques passe par eux. (A circulé la production de courant continu à 50 Hz)..
3. Un circuit résonnant dans lequel les rouleaux d'aimant de fer à cheval sont raccordés au condensateur de diode pour que le règlement de fréquence soit assuré. Le condensateur de diode est alors raccordé à la jarre Leyden, l'unité de transmetteur.

Les principes physiques importants impliqués dans cette unité composite exceptionnelle sont :

1. La conversion électrostatique en utilisant des disques de jumeau de la production positive d'un et la production négative de l'autre.
2. L'évidence de l'Effet de Searle de l'utilisation de segments multiples, identiques d'acier incitants et d'EMF dans les électro-aimants au bord des disques.
3. Le principe Ecklin est aussi dans l'évidence, depuis le laisser-passer de segments d'acier par les aimants de fer à cheval permanents, comme dans les unités S.A.G. d'Ecklin.
4. Le Poggendorff le fait de faire tourner de soi le principe automobile électrostatique comme décrit ci-dessus.
5. La fonction de capacité en cristal du module en cristal de diode. L'opération complète de cette composante unique avec son aimant permanent cylindrique creux, est une composante composite avec les fonctions doubles de distribuer les charges correctes aux secteurs et maintenir la fréquence de production à la valeur désirée.


Le Convertisseur M-L est complètement symétrique avec deux disques en acrylique, un treillage en métal clair, a isolé des fils couleur cuivre, un redresseur de-diode-en-cristal secret et des connexions électriques plaquées d'or. Ces machines ont été développées pour la durée de vingt ans.

Dans les générateurs électrostatiques, les molécules aériennes entre les deux disques en acrylique qui contre-tournent de près côte à côte, devenir électriquement activées par la friction. Cela fait les disques être constamment chargés jusqu'à ce qu'un flashover égalise la charge sur eux. Pour limiter le voltage à la quantité désirée, les particules de façon positive chargées sur un des disques et des particules négativement chargées sur l'autre disque sont chacun extraites au moyen des électrodes de treillage séparément ajustables et sont nourries dans une jarre Leyden qui recueille l'énergie. La vitesse des disques qui ont 50 électrodes de treillage, est 60 tr-min qui produit la production de courant continu circulée de 50 Hz. Cette vitesse est synchronisée par les impulsions magnétiques.

L'unité est la main commencée en tournant les deux disques dans les directions opposées jusqu'à ce que le Convertisseur soit monté à toute vitesse assez pour se synchroniser et continue à tourner doucement et silencieusement sans n'importe quelle source externe de pouvoir de contribution. Un disque au centre monté d'entre environ 4" (100 millimètres) dans le diamètre jette une faible lueur avec toutes les couleurs de l'arc-en-ciel. Après quelques secondes les jarres Leyden sont prêtes pour l'opération et le courant continu de 300 volts avec un courant de 10 ampères peut être tiré de l'artifice pour n'importe quel terme désiré. Dans beaucoup d'occasions, les démonstrations ont été rendues du pouvoir disponible de l'artifice. Le chauffage des éléments, les lumières et les instruments de pouvoir de mains peut être dirigé de l'artifice.

Cette explication suggérée du Convertisseur M-L contient un certain nombre de points très intéressants. Il a semblé mystérieux que les disques électrostatiques ont continué à faire tourner tout seuls sans n'importe quel moteur visible en les conduisant. M. Kelly, qui a vu l'artifice et son opération, suggère que là descendent en pente des brosses appuyant sur le front et les visages arrière du jumeau les disques électrostatiques et que ceux-ci sont fournis le courant électrique des rouleaux d'aimant de fer à cheval et cela agit comme un moteur qui conduit les disques en avant dès qu'ils ont été commencés. Il suggère aussi que le cinquante acier segmente par seconde qui passent entre les pôles de la cause des aimants de fer à cheval un champ magnétique rapidement fluctuant par les rouleaux d'aimant, qui les fait opérer comme un générateur électrique Ecklin, comme décrit ailleurs dans cet eBook.

M. D. A. Kelly suggère aussi que les deux cylindres vus sur le Convertisseur M-L, sont des condensateurs de jarre Leyden et qu'ils collaborent comme décrit par monsieur Oliver Lodge (dont le livre est sur ce site Internet). C'est une suggestion très intéressante, mais il n'explique pas pourquoi les gens dans la commune suisse refusent le blanc de point pour permettre à quelqu'un de voir ce qui est à l'intérieur de ces cylindres.

Il y a une vidéo produite par Don Kelly (sans doute, une différente personne) qui avance une autre théorie d'opération. Il suggère que chacun des cylindres contient un rouleau de bi-filar sur un baryum ferrite l'aimant :


Pourtant, il décrit le baryum ferrite l'aimant comme étant le même type qu'utilisé dans les récepteurs radio et ils sont standard "ferrite des baguettes" qui ne sont pas des aimants permanents autant que je prends conscience. Don suggère que la production du haut voltage les disques électrostatiques est nourrie directement à ces rouleaux et ensuite sur via une connexion de série aux rouleaux autour des aimants de fer à cheval. Il envisage le rouleau de bi-filar amplifiant le courant et les disques électrostatiques étant tournés par un moteur de courant continu de voltage bas standard.

Une autre possibilité consiste en ce que les jarres contiennent aussi un trou d'étincelle et un encerclement des coquilles de pick-up couleur cuivre et comme la machine opère silencieusement, les jarres ont un vide à l'intérieur d'eux. Cela fournirait l'opération silencieuse et expliquerait pourquoi les gens dans la commune ne pouvaient pas les ouvrir pour l'inspection. Il semble très clair que nous ne savons pas juste exactement comment cet artifice opère.

Un fait très intéressant qui a été annoncé par le groupe suisse est que si une série de cuivre, aluminium et draps Perspex est placée dans un champ magnétique, ils produisent un haut voltage. Cela vaut la peine d'enquêter. Il n'est pas clair si le champ magnétique devrait être constant ou le fait d'osciller. On dit que l'ordre de plaques soit : cpacpacpacpa (“c” être le cuivre, “p” étant ‘Perspex’ (en acrylique ou ‘Plexiglas’) et “a” étant de l'aluminium).

L'organisation suivante pourrait valoir la peine d'enquêter :



Il y a de bonnes informations sur le Testatika ici mais malheureusement personne ne sait comment copier la machine excellente de Paul Baumann.

Si vous voulez comprendre l'opération de disques électrostatiques, donc le livre de McGraw-Hill “Homemade Lightning” par R.A. Ford (l'ISBN 0-07-021528-6) donne des détails complets de machines Wimshurst et de plans pour construire votre version propre, améliorée. Les machines de Wimshurst Prêt-construites sont disponibles du site Internet : ici.


Le “Romag” et “Mini-Romag” Générateurs.   Ces générateurs ont été affichés sur Internet depuis quelque temps considérable maintenant. Ils peuvent être trouvés sur le Jean-Louis Naudin le site Internet : ici.



Le générateur Romag Mini-de l'Énergie Magnétique utilise le principe de déplacer l'écoulement magnétique appelé "le courant magnétique" pour produire la génération électrique. Selon l'Énergie Magnétique ce générateur est en mesure de produire 3.5 volts, 7A le courant continu (24 Watts) d'électricité libre plus le pouvoir suffisant de se soutenir.

Ce générateur doit être commencé en utilisant un moteur externe pour le faire tourner à 2,100 tr-min depuis environ 42 secondes. Après cela, l'écoulement d'énergie est établi dans le générateur Romag et le moteur externe peut être enlevé et la production d'énergie électrique libre peut être utilisée.


La procédure de départ produit l'énergie magnétique dans les six rouleaux de fil couleur cuivre, le tube couleur cuivre soutenant ces rouleaux et le cuivre a enduit des fils d'acier emballés autour des aimants. Cela le fait de charger est accompli pendant que la six connexion de rouleau télégraphie, (montré comme 22 dans le susdit dessin), se met en contact et monte leurs pôles magnétiques se relayant. Après que le 42 deuxième un de temps de démarrage de ces fils de connexion de rouleau est ouvert par le changement (24 ci-dessus) le départ de la charge travaillant dans son endroit. La charge (23 ci-dessus) peut tirer 7 ampères. Comme le courant est tiré des six rouleaux, il monte des pôles magnétiques qui réagissent avec les aimants de rotor maintenant la rotation. Le puits principal est tourné par les 12 aimants permanents comme ils attirent et construisent un champ de libération. Alors l'unité de chauffeur (le fanatique de mains ou le moteur) est débranchée en permettant à l'unité de continuer à tourner avec la charge étant la poussée activante.

Ce générateur doit être commencé en utilisant un moteur externe pour le faire tourner à 2,100 tr-min depuis environ 42 secondes. Après cela, l'écoulement d'énergie est établi dans le générateur Romag et le moteur externe peut être enlevé et la production d'énergie électrique libre peut être utilisée.


Construction:
Si vous décidez d'essayer de construire une de ces unités nous suggérons d'utiliser le matériel indiqué :
  1. Plaque de fond En aluminium.

  2. Le Rapport de Pochette de pétrole a imprégné le cuivre jaune, 1" longtemps, 0.5" diamètre intérieur.

  3. Le Puits En laiton, 4" longtemps, 0.5" diamètre extérieur.

  4. Rotor : le cuivre jaune 1.75" long, 2" diamètre.

  5. Six fentes de rotor, chacun 1.75" long, 0.26” profond, 0.72" large. Ces fentes sont espacées exactement 60 degrés à part.

  6. Une fente coupe dans le centre de Rotor En laiton, 360 degrés autour de, 0.25" large par 0.313" profondément.

  7. 12 fentes (produit des six fentes quand le 360 degré coupe est fait). Chaque fente est doublée avec l'isolation de mica, 0.01” épais.

  8. Un total de 228 morceaux de cuivre U-shaped a enduit des fils d'acier, 0.04” épais. Chaque fente (7 ci-dessus) a 19 morceaux de ces fils s'est inscrit au Mica, ainsi ces fils ne contactent pas le rotor En laiton. Le principal bord de ces fils est la rougeur avec la surface extérieure du Rotor et le bord traînant dépasse 1/8" au-dessus du diamètre extérieur du Rotor.

  9. Chacun des 12 aimants reçoit onze tours complets de fil enduit d'acier de 0.032" cuivre épais. Ces 11 tours ou 'emballages' accumulent à 3/8" large et le même dessin est placé autour de tous les 12 aimants. Quand placé dans les fils de disposition (8 ci-dessus), ils forment un contact ferme se mettant approprié douillet.

  10. Douze morceaux d'isolation mylar, 0.005" épais, sont insérés dans les coeurs des fils (9 ci-dessus).

  11. Les douze aimants permanents, isolés avec le mylar, ne doivent pas contacter des fils de 9). Ces aimants mesurent 3/4" longtemps, 5/8" large, 3/8" épais et sont faits d'une composition spéciale et d'une force. Alnico 4, le M 60; 12 AL, 28 Ni, 5 Cobalt Fe, Isotropic la matière d'aimant permanente se refroidissait dans le champ magnétique, l'Ensemble des acteurs 9100 TS. 450 Brin, 2.2 produit d'énergie Maximal. Quand inséré dans le rotor les visages extérieurs de ces 12 aimants ne doivent pas être usinés à un rayon. Le centre de ces aimants passe le centre des rouleaux avec 3/32" le déblayage. Les bords, où les fils sont emballés, passent 1/32" loin des rouleaux. Ces ‘outils’ d'écartement d'aimant changeants dans pas seulement le cycle de libération mais contribuent aussi au mouvement rotationnel. (Les bords d'aimant pointus qui font face aux rouleaux doivent être sanded à un petit rayon lisse).

  12. Assurez-vous que les aimants sont placés dans le Rotor avec la polarité montrée dans le diagramme.

  13. Les 12 emballages de fil d'aimant sont divisés en deux sections; 6 supérieur et 6 plus bas. Il n'y a aucune connexion entre ces sections. La direction d'écoulement magnétique entre les 6 emballages supérieurs et les 6 emballages plus bas est atteinte par la 'direction d'écoulement’. Les fils sont emballés autour de l'aimant commençant à la moitié 'nord' supérieure et ensuite après 11 tours complets les sorties métalliques à la moitié 'sud' plus basse. Comme ce fil va alors à l'aimant suivant il arrive à un fil attire qui est son côté 'nord'. Ainsi tous les fils sont raccordés du sud à l'aimant nord la moitié ou le nord à l'aimant sud la moitié. Les connexions réelles devraient être frisées les clips couleur cuivre (pas soudent) avec la tuyauterie d'isolation pour prévenir le contact au corps de Rotor.

  14. Un 0.03" tube couleur cuivre épais (la matière rigide) 2" longtemps par 2 ½" à l'intérieur du diamètre.

  15. Six fentes sont coupées au sommet du tube *14. Ces fentes sont 5/8" large par 1/32" profondément espacé à 60 degrés à part.

  16. Six fentes sont coupées au fond du tube #14. Ces fentes sont 5/8" large par 5/16" profondément et conformément aux fentes supérieures #15.

  17. Il y a six tube couleur cuivre montant des points.

  18. Un en acrylique sonne est utilisé pour tenir la Partie #14, en mesurant 3.75" diamètre extérieur et 2.25" diamètre intérieur, 3/8" épaisse, verrouillé directement à la Partie #1. Cet anneau a une 0.03" large coupe d'un sillon 0.25” profondément pour permettre au six tube couleur cuivre montant des points d'être inséré (la partie 17).

  19. Le papier d'isolation de plastique, 0.002" épais, doit être placé autour de l'intérieur et extérieur de la Partie #14.

  20. Il y a six rouleaux de fil couleur cuivre isolé, chaque rouleau ayant 72 tours de .014 fil épais. Chaque rouleau est la blessure avec deux couches, la couche de fond remplit complètement le 5/8" la large fente avec 45 tours et la couche supérieure s'étend sur 5/16" large avec 27 tours. Pour être sûr chaque rouleau a la longueur métallique exacte de 72 tours, un fil de longueur de promotion est emballé alors déroulé pour servir d'un gabarit pour six longueurs. Un rouleau suggéré la méthode sinueuse doit remplir une petite canette d'une longueur alors en tenant le tube couleur cuivre à l'extension plus basse, commencer ensuite au plus le fil dans le chiffre 2 et protéger temporairement ce fil à la surface extérieure du tube.

  21. Placez ensuite, la canette pré-mesurée de fil à l'intérieur du tube, en enveloppant en bas et autour de l'avancement extérieur dans le sens des aiguilles d'une montre jusqu'à ce que le 5/8" la fente soit rempli de 45 tours. Alors, rendez ce fil en arrière à travers le haut du rouleau pour 15/32" et enveloppant dans la même direction avancent de nouveau dans le sens des aiguilles d'une montre le placement de la deuxième couche étendue pour 5/16" avec 27 tours. Cette méthode devrait avoir la deuxième couche tout à fait centrée au-dessus de la première couche. Après le fait d'envelopper ce rouleau, répétez le processus, en remplissant la petite canette d'une autre longueur de fil pré-mesuré. Une réponse magnétique très importante arrive comme tous les six rouleaux ont leurs deuxièmes couches espacées de cette manière.

  22. L'article 22 au-dessus des spectacles le dessin de connexion pour six rouleaux. Quand l'unité est conduite au démarrage (le fanatique de mains) depuis 42 secondes à 2100 tr-min, tous les six fils de sauteur doivent être ensemble qui signifie le plus le fil va au moins le fil raccordé par le changement de début. Après 42 secondes la charge est ajoutée au circuit et le changement de début est ouvert. Pour doubler le chèque vos connexions entre les rouleaux, notez que le fil de fin de rouleau #1 va au fil de fin de rouleau #2, qui est la couche supérieure pour dépasser la couche. Ce dessin a alors le début de rouleau 2 (la couche de fond) allant au début de rouleau 3 (aussi la couche de fond). Quand le tube couleur cuivre avec les rouleaux est placé autour du rotor, la distance de n'importe quel aimant à n'importe quel rouleau doit être identique. S'il mesure les formes de possession différentes, en acrylique peuvent être verrouillées à la base en aluminium, en dépassant en haut et pousser ainsi le tube couleur cuivre dans la direction devait maintenir l'écartement comme exposé.

  23. Les fils qui communiquent à la charge.

  24. Les fils qui communiquent au changement de début.

  25. La direction de rotation est dans le sens des aiguilles d'une montre quand vu du haut.

  26. Un dôme en acrylique pour la protection contre le temps.

  27. La couche de clairs en acrylique solidifier le rotor. N'utilisez pas de vernis automobile standard. Pré-chauffez le rotor et trempez-le ensuite dans le liquide en acrylique chauffé. Après l'enlèvement du réservoir de trempette, la main tourne jusqu'à ce que l'en acrylique ne durcisse, équilibrer ensuite le rotor. Pour équilibrer la la procédure, ajoutez des en laiton de poids ou enlevez le cuivre jaune comme nécessaire en forant de petits trous dans le rotor sur son lourd côté.

  28. Tuyauterie d'isolation mise sur toutes les connexions.

  29. Le puits pour les buts de début et la mise à l'essai de vitesse (si désiré).
La raison que ce générateur est inclus dans ce chapitre est parce que la construction est tout à fait complexe. Aussi, les plans ont été autour de depuis plusieurs années sans ce que je prends conscience de quelqu'un le fait de construire ou le fait de faire marcher une de ces unités.


Fusion Froide.   La fusion froide a été au départ acceptée avec la grande excitation. Il a alors eu l'air d'être discrédité, essentiellement comme la peur de perdre le financement pour les décades la vieille recherche de fusion "chaude". À présent, il y a environ deux cents laboratoires. qui ont confirmé les conclusions et s'il n'y a aucun doute quant à la réalité du système. Essentiellement, on le dit que la fusion nucléaire peut survenir à la température de pièce, dans de certaines conditions. Pourtant, un artifice travaillant commercial atteint maintenant le marché avec les détails sur le site Internet de Stirling Allen : ici.

Si vous voulez les détails de base d'histoire de fusion froide, donc il y a plusieurs sites Internet qui suivent le progrès dans ce champ, en incluant “des Temps de Fusion Froids” ici où le détail considérable est disponible.


Le Générateur Hydrogène Atomique de Moller et Frolov.   Une expérience déjà réussie peut être trouvée ici où J.L. Naudin montre beaucoup d'épreuves réussies sur un système qui peut être trouvé à le ici. Alexander Frolov remarque qu'en raison de la pompe d'eau étant en apparence actionnée, les résultats montrés par J.L. Naudin ne sont pas tout à fait exacts bien que l'erreur ne soit pas significative pour les niveaux de pouvoir au-dessous d'un kilowatt et donc la performance est vraiment très légèrement moins que cela a annoncé.

Ce système commençait avec le concept de Guillaume Lyne qu'il a publié dans son livre “les Systèmes d'Éther Occultes” en 1997. En 1999, Nikolas Moller a acheté une copie du livre de Lyne et a attiré l'attention d'Alexander Frolov à l'idée. Alexander a alors travaillé l'idée et a produit tous les deux la présente théorie et le design. Un projet collectif a été alors commencé entre Alexander’s “Faraday Company Ltd.” de Saint-Pétersbourg en Russie (www.faraday.ru) et la compagnie de Nikolas “Spectrum Ltd.”.

Le prototype montré à la photographie ci-dessous, a été alors construit par Alexander et a passé à Nikolas où il a été évalué abondamment. Le processus exact impliqué dans l'augmentation d'énergie a seulement récemment été complètement révélé dans le livre d'Alexander entitled “les Nouvelles Sources d'Énergie”.

La technique utilisée implique plusieurs fois de convertir une quantité de gaz hydrogène de son état de diatomic (H2 où deux atomes hydrogènes sont bonded ensemble pour former une molécule ferme), à son H - H d'état de monatomic (où deux atomes hydrogènes restent comme les atomes séparés, pas de près bonded ensemble) et en arrière de nouveau à c'est la forme originale.

Aucun hydrogène n'est consommé. Aucun gaz supplémentaire n'est exigé. Le gaz est juste converti d'un état à l'autre, plusieurs fois. Le problème pour la science conventionnelle est que la puissance de sortie mesurée dans les épreuves est considérablement plus grande que le pouvoir de contribution dans les épreuves soigneusement mesurées qui ont été dirigées pendant les périodes de plus que la demi-heure chacun. Le pouvoir supplémentaire se jette du champ de Zero-Point Energy en raison d'un mécanisme d'extraction d'énergie provoqué par la collision de molécules qui ont des poids atomiques radicalement différents. C'est expliqué par Dr Frolov dans son papier où le déséquilibre d'énergie est décrit en détail. Dans cela, il remarque que la théorie montre clairement qu'une contribution de 1,400 watts est capable de produire une production de 7,250 watts en raison du déséquilibre d'énergie d'impact entre les molécules de-masse-hautes et de-masse-basses quand ils entrent en collision.

Voici une photographie de l'assemblage de développement construit par Alexander Frolov et ensuite utilisé dans la phase de mise à l'essai du système :





La "Étoile Océanique” le Générateur Électrique de Muammer Yildiz.   TC'est un artifice purement mécanique qui est actionné de soi et qui peut fournir le courant électrique pour conduire d'autre équipement. Cet artifice a été conçu et construit en Turquie. Il a été démontré à Dortmund le 17 octobre 2005 où la démonstration a été accomplie par J. L. Duarte qui a dirigé une épreuve indépendante et a produit un rapport daté le 17 juillet 2005 de la part du Département d'Électrotechnique, Electromechanics et Électronique de Pouvoir d'Eindhoven Technische Universiteit. Muammer a obtenu WO2004091083 Breveté D'application pour son design. La démonstration avait de son unité portative que le courant continu d'environ 12 volts de productions :


Pendant la démonstration a été utilisé pour allumer une ampoule automobile très de couleurs vives :


Muammer a aussi produit une plus grande version capable de brancher une maison :


L'unité de démonstration a été commencée en utilisant une 16 batterie AHr depuis quelques secondes. Dès que l'unité atteint sa vitesse de course à pied, il devient actionné de soi et capable de livrer la génération électrique substantielle et la batterie de départ est alors débranchée. Dans la théorie, aucun système mécanique ne peut produire l'efficacité de 100 %, sans parler de plus de 100 %. Ce système où un moteur lance plusieurs générateurs, ressemble beaucoup au système de Raoul Hatem décrit dans le Chapitre 2.

Le rapport par Dr J. L. Duarte sur la plus petite unité fournit les informations suivantes :

Cette note technique vise à décrire une épreuve que j'ai personnellement accomplie dans Izmir, la Turquie le 17 juillet 2005. Le but de l'expérience était de vérifier la balance d'énergie en ce qui concerne la contribution et la production d'un appareil qui était la personnification de l'invention décrite dans le brevet international WO 2004/091083 A1 (montré ci-dessous).

L'appareil a été confiné à l'intérieur d'une boîte métallique 550 x de grandeur 380 270 millimètres x, en pesant environ 20 kg et on m'a permis d'inspecter tout à l'extérieur de cette boîte. Pourtant, pour protéger les idées de base de l'invention, je n'ai pas été censé vérifier tous les détails des parties intérieures. Selon l'inventeur, l'appareil est essentiellement un système mécanique, sans n'importe quelle sorte d'entreposage d'énergie à l'intérieur de la boîte (comme batteries, les accumulateurs, les volants, les moteurs de combustion, les réactions chimiques ou radioactives). Je crois les intentions de l'inventeur d'être de bonne foi.

L'organisation expérimentale était tout à fait simple, comme montré schématiquement dans la Fig.1. Il s'est composé de placer la boîte avec les contenus inconnus, dont on s'est attendu à ce qu'aux voltages de courant continu et les courants aient été produit, sur une table au milieu de la pièce. Un câble avec deux contacts terminaux a été dirigé de la boîte et les instruments ont été placés entre la boîte et la charge, qui était un courant continu/courant alternatif standard inverter la conduite d'une lampe incandescente. La puissance de sortie de la boîte a été mesurée avant la connexion de charge comme montré ici :


La méthode de connexion de circuit utilisée est montrée ici :


Après une procédure de début courte, la boîte métallique et la charge ont été les deux complètement isolés de l'environnement, en garantissant qu'il n'y avait aucun contact physique ou connexion aux sources de pouvoir externes comme les réserves de conduite principale électriques publiques, d'un moment à l'autre pendant la durée entière des mesures. Comme la contribution d'énergie de démarrage à l'appareil était tout à fait modeste, l'édition principale devait alors mesurer la production d'énergie livrée.

J'avais préparé les mesures de pouvoir avec le soin, en utilisant des instruments sûrs que j'ai personnellement apportés avec moi de mon propre laboratoire Universitaire. Pour mesurer le voltage de courant continu directement des terminus positifs et négatifs, j'ai utilisé deux différents voltmètres raccordés dans le parallèle. Un voltmètre était un type analogique, construit avec les aimants permanents et les fils, pendant que l'autre était un voltmètre numérique. Pour mesurer le courant de courant continu j'ai utilisé deux ampèremètres en série, un analogue et un numérique. Si les signes électromagnétiques devraient se mêler des mesures, donc ils dérangeraient un ou d'autre instrument, mais pas tous les quatre morceaux en même temps et de la même façon.

Avant le fait de commencer l'épreuve, aucun son audible n'était produit par l'appareil. Le voltage mesuré et le courant aux terminus étaient le zéro. Ainsi autant que je pourrais observer, l'appareil était complètement au repos.

La procédure de démarrage s'est composée de raccorder un petit 12V la batterie de premier acide de courant continu à deux points de contact à l'intérieur de la boîte depuis quelques secondes. J'ai vérifié le temps en utilisant ma propre montre et c'était plus de 5 secondes, mais moins de 10 secondes. Je considère raisonnable de considérer le temps pour avoir été 8 secondes. Après ce temps, aucune contribution d'énergie n'a été raccordée à la boîte au moyen des câbles.

Tout de suite après la procédure de démarrage, je pourrais entendre dire que le bruit comme serait produit par les parties faisant tourner à l'intérieur de la boîte. L'inventeur a dit que l'on devrait permettre qu'environ dix minutes s'écoulent avant que la charge a été raccordée. Pendant ce temps, les deux des voltmètres ont montré la tension de sortie tombant lentement de 12.9 volts à 12.5 volts. Les deux voltmètres se sont accordés exactement. Aux heures suivantes, j'ai observé et ai enregistré à la main, le voltage et les valeurs actuelles affichées selon les instruments. Les valeurs affichées étaient tout à fait fermes, donc j'ai au départ décidé de les noter à intervalles de 15 minute, mais plus tard sur à intervalles de 30 minute.

De temps en temps, en utilisant mes mains, j'ai essayé de trouver un gradient de température à l'intérieur de la boîte, mais je ne pouvais pas découvrir de variation ou augmenter dans la température comparée à la température de pièce. Après cinq heures, j'ai pris la décision pour arrêter les mesures. Les résultats sont montrés dans la table suivante :


Autant que je sache, la susdite table de résultats lève des doutes sérieux. Les lectures de voltage sont absolument typiques d'un inverter actionné par une batterie acide-première. J'ai évalué beaucoup de batteries d'exactement la même façon et la table regarde 100 % familiers. Si la boîte a contenu un vrai générateur de force de soi, donc je m'attendrais à ce que la tension de sortie reste constant sous la canalisation actuelle constante. À mon opinion, il était entièrement irresponsable d'avoir arrêté l'épreuve après juste cinq heures avec la tension de sortie tombant progressivement. Si la tension de sortie avait été la roche régulière à 12.5 volts depuis les cinq heures entières, donc cela n'aurait pas été tout à fait si mauvais, mais avec cela descendant 12.3, 12.2, 12.1, 12.0 dans les quatre derniers intervalles de 30 minutes et avec un voltage de batterie acide-premier de 11.5 pour une batterie complètement renvoyée, il était entièrement irréaliste d'arrêter l'épreuve. Des dix heures de plus de mise à l'essai devraient avoir été entreprises.

Pourtant, au début de 2010, Muammer a démontré un moteur/générateur d'aimant permanent de son propre design. Ce type d'artifice est notoirement difficile de devenir fonctionnel, sans parler de la production de 250 watts de pouvoir que Muammer démontrait à l'Université de Delft. Comme faisant partie de la démonstration, Muammer a pris le moteur à part complètement pour montrer qu'il n'y avait aucune source de pouvoir cachée. Cela montre clairement que Muammer est un homme de capacité très considérable et cela prête la crédibilité considérable à son plus premier artifice montré ici. Malheureusement, l'application brevetée n'est pas dans l'anglais et certains des termes produits par une traduction rugueuse ne sont pas du tout clairs. Par conséquent, bien que le design semble tout à fait simple, il ne peut pas être estimé comme un design qui pourrait être avec confiance copié des informations ici et pour cette raison, les informations OceanStar restent ici, parmi le "Probablement pour s'Ensuivre dans un Artifice Possible” la section.

Voici les informations du WO2004091083 Breveté D'application bien que la qualité de reproduction et de la clarté des termes ne soit pas particulièrement bonne :

UN SYSTÈME QUI PRODUIT LA GÉNÉRATION ÉLECTRIQUE VIA un
L'ACCUMULATEUR QUI FOURNIT LE MOUVEMENT INITIAL AU SYSTÈME

RÉSUMÉ

C'est un système portatif qui produit la génération électrique via un accumulateur qui fournit le mouvement initial au système. Deux batteries sont utilisés dans ce système et le système est gardé en travaillant via le mouvement initial fourni par ces batteries. Il n'y a aucun besoin pour un autre transformateur. Ces travaux d'artifice en utilisant son propre mécanisme et il n'y a aucun besoin pour les artifices supplémentaires. De cette manière, une génération de génération électrique continue est possible. Cet artifice peut travailler sans le raccorder à un réseau donc il est possible de l'utiliser aux endroits où l'électricité n'existe pas. De plus, quand raccordé à l'entrée d'un bâtiment, on évite le besoin pour un réseau. Ce système produit la génération électrique indépendante d'un réseau.

DESCRIPTION
Un système qui produit la génération électrique via un accumulateur qui fournit le mouvement initial au système c'est un système portatif qui produit la génération électrique via un accumulateur qui fournit le mouvement initial au système. Les systèmes déjà existants peuvent produire le pouvoir électrique de dont la durée dépend de la vie de la batterie. Dans ces systèmes, la batterie doit être rechargée pour recommencer le système. 12V la génération électrique fournie par le batteries utilisé dans les voitures est augmentée à 220 V via les transformateurs.

Deux accumulateurs sont utilisés dans notre invention. Les travaux de système sur une base continue après l'initial créent via ces accumulateurs. Il n'y a aucun besoin pour un autre transformateur. Notre système, qui produit la génération électrique, n'a besoin d'aucuns autres artifices et il continue à produire l'énergie via son propre mécanisme. Aussi, le système travaille sans le raccorder à un réseau.

Ainsi, il peut être utilisé à n'importe quel endroit où aucune électricité n'existe. Quand même, quand ce système est raccordé à l'entrée des bâtiments, il n'y a aucun besoin pour un réseau supplémentaire. Le système peut produire la génération électrique indépendante d'un réseau.


DESCRIPTION DES DESSINS
Ci-dessous sont les explications des figures qui fournissent une meilleure compréhension de cette invention.


Fig.1 est une vue schématique du système.


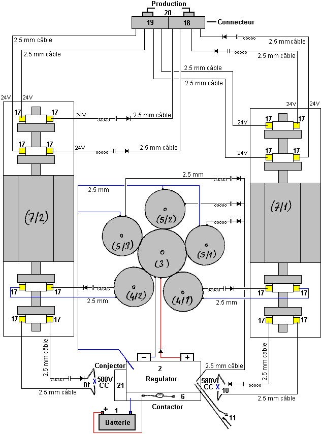
Les nombres utilisés sur le schéma :
  1. Accumulateur
  2. Régulateur
  3. Grand Matériel 3/1-Dynamo de démarreur
  4. Petit matériel 4/1-2-Dynamo pour le fait de recharger
  5. Petit matériel 5/1-2-3-Dynamo pour le fait de recharger
  6. Contactor
  7. l et 2- Commitatris
  8. 29 contribution de courant continu
  9. 24 production de courant continu
  10. 580 production de courant continu
  11. Changement
  12. Pontage électrique
  13. Redresseur
  14. Condensateur
  15. 2.5 mm câble
  16. Collectionneur
  17. Charbon de bois
  18. Le fait de fixer des attaches
  19. Le fait de fixer des attaches
  20. Lampe
  21. Connecteur
  22. Dynamo de démarreur
  23. Dynamo pour le fait de recharger
  24. Dynamo de courant alternatif
  25. Changement magnétique
  26. Poulie
  27. Poulie
  28. V-poulie
  29. 380 V production actuelle
  30. 220 V contribution actuelle



DESCRIPTION
Cette invention est un système qui commence à travailler via le mouvement d'alternateur. Là existez deux accumulateurs (1) et le premier mouvement fourni par l'accumulateur est porté au régulateur. Contactor (6) garde la dynamo de démarreur travaillant en débranchant l'accumulateur (1) dès que le régulateur (2) est recommandé. Le voltage venant de l'accumulateur (1) traverse le régulateur et la dynamo de début (3/1) commence à travailler et ainsi les alternateurs de feed-back via les matériels (4/1-2-5/1-23-3). La dynamo de feed-back commence à envoyer le courant de courant continu pur au régulateur via manoeuvrent (12), le condensateur (14) et la diode (13). Il raccorde tous les courants qui arrive au régulateur dans 4 secondes et envoie au contactor (6). L'accumulateur (1) est diffusé par ce courant qui arrive au régulateur. Ce courant est transformé à la dynamo commencée (3/1). Là devient la transformation a. dans le système. En cas de l'insuffisance d'électricité, il continue à travailler en utilisant le courant produit par le commitatris (7/1).

Via la dynamo de démarreur (3/1), le courant continu est produit dans les alternateurs qui sont raccordés aux matériels et ce courant est transformé au commitatris (7/1 et 7/2) et le voltage de courant continu est produit à commitatris (7/1 et 7/2).

Deuxième Système : 3x24 le voltage de courant continu est transformé à la deuxième dynamo de démarreur (22). Une fois les travaux de dynamo de début (22), une dynamo de feed-back (23) le fait d'avoir un système de poulie et une dynamo de feed-back (24) le courant alternatif produisant commence à travailler. La dynamo de feed-back (23) les débuts nourrissant en arrière; la dynamo de feed-back (24) qui produit le courant alternatif produit de façon indépendante 6 KV, 18 Ampère, 50Hz le courant. De plus, le premier système produit 24 courant continu et 580 courant de courant continu tout seul. Plus grand les matériels sont, plus du courant produit est.

Ce système, qui est le sujet de notre invention, peut être utilisé à n'importe quel endroit. Vous pouvez l'utiliser aux endroits où là n'existent aucune électricité, ou aux endroits comme les villages, les villes, les bâtiments, les serres où il n'y a aucun réseau. De plus, le réseau n'est plus le fait de devoir. Au lieu d'un réseau, vous pouvez utiliser notre système. Il n'y a aucun besoin pour l'essence quand ce système est utilisé dans les véhicules.


Jesse McQueen.   Il y a un brevet américain qui a été accordé à Jesse McQueen en 2006. Ce système semble trop bon pour être vrai et, sur la surface, semble impossible, en tenant même compte que l'on l'a dit que les alternateurs de véhicule ordinaires ont un Coefficient de Performance sur un (c'est-à-dire l'énergie de production est plus grande que l'énergie que l'utilisateur doit mettre dans l'artifice de le faire opérer). Je ne suis pas conscient de quelqu'un qui a essayé ce système, donc je n'ai aucune évidence qu'il ne travaille pas - juste un manque de conviction en système de ce type étant en mesure d'opère comme décrit. Comme contre cela, le Bureau des brevets américain a accordé ce brevet et ils ont une réputation d'être hautement opposés admettant de cela il y a une telle chose qu'une "machine de mouvement perpétuelle”, que ce système est clairement . Ainsi je le quitte jusqu'à vous pour me décider et évaluer le système si vous voulez, qui devrait être facile de faire comme il n'implique aucune construction réelle, mais au lieu de cela utilise des produits fabriqués disponibles qui sont sans hésiter disponibles et pas particulièrement chers. Voici le brevet

Brevet US 7,095,126     Le 22 août 2006     Inventeur: Jesse McQueen

SOURCE DE POUVOIR PRODUISANTE ÉNERGIE INTÉRIEURE


RÉSUMÉ

Une source de pouvoir externe comme une batterie est utilisée pour au départ fournir le pouvoir de commencer un alternateur et un générateur. Dès que le système a commencé ce n'est pas nécessaire pour la batterie de fournir le pouvoir du système. La batterie peut alors être débranchée. L'alternateur et le travail automobile électrique dans la combinaison à la génération électrique de générateur. L'alternateur fournit cette génération électrique à deux inverters. Une partie de productions inverter de c'est le pouvoir de la lampe et de la partie en arrière au moteur/générateur électrique. Ce pouvoir est eu recours au pouvoir le moteur électrique. Deuxième inverter fournit le pouvoir des artifices de charge spécifiques qui sont raccordés au système.

Références Brevetées américaines :
5033565 July 1991 Abukawa et al.
5036267 July 1991 Markunas
5785136 July 1998 Falkenmayer et al.

FOND DE L'INVENTION
L'énergie électrique se produit naturellement, mais rarement dans les formes qui peuvent être utilisées. Par exemple, bien que l'énergie dissipée comme la foudre excède la demande du monde pour l'électricité par un grand facteur, la foudre n'a pas été mise à l'utilisation pratique à cause de son imprévisibilité et d'autres problèmes. Généralement, les systèmes pratiques passent "le pouvoir électrique produisant" l'énergie mécanique de parties bougeantes dans l'énergie électrique. Pendant que les systèmes qui opèrent sans un pas mécanique existent vraiment, ils sont à présent excessivement mal organisés ou cher à cause d'une dépendance à la technologie compliquée. Pendant que quelques usines électriques tirent l'énergie mécanique de déplacer de l'eau (le pouvoir hydroélectrique), la majorité vaste le tire des moteurs de chaleur dans lesquels la substance travaillant est la vapeur. Grossièrement 89 % de pouvoir dans les États-Unis est produit cette voie. La vapeur est produite avec la chaleur de la combustion de combustibles fossiles ou de la fission nucléaire.

Dans l'électricité, une machine est utilisée pour changer l'énergie mécanique dans l'énergie électrique. Il opère sur le principe d'induction électromagnétique. Quand un conducteur traverse un champ magnétique, un voltage est incité à travers les fins du conducteur. Le générateur est simplement un arrangement mécanique sur déplacer le conducteur et mener le courant produit par le voltage à un circuit externe, où il déclenche des artifices qui exigent l'électricité. Dans la forme la plus simple de générateur, le conducteur est un rouleau ouvert de fil tournant entre les pôles d'un aimant permanent. Pendant une rotation simple, un côté du rouleau traverse le champ magnétique d'abord dans une direction et ensuite dans l'autre, pour que le courant incité soit le courant alternatif (le courant alternatif), en bougeant d'abord dans une direction, ensuite dans l'autre. Chaque fin du rouleau est attachée à un anneau d'erreur en métal séparé qui tourne avec le rouleau. Les brosses qui reposent sur les anneaux d'erreur sont attachées au circuit externe. Ainsi le courant coule du rouleau aux anneaux d'erreur, ensuite par les brosses au circuit externe. Pour obtenir le courant continu (le courant continu), c'est-à-dire, le courant qui coule dans seulement une direction, un commutateur est utilisé à la place des anneaux d'erreur.

Un commutateur est une déchirure d'anneau d'erreur simple dans les moitiés gauches et justes qui sont isolées l'un de l'autre et sont attachées aux fins opposées du rouleau. Il permet au courant de quitter le générateur par les brosses dans seulement une direction. Ce courant palpite, en allant d'aucun écoulement à l'écoulement maximum et en arrière de nouveau à aucun écoulement. Un générateur de courant continu pratique, avec beaucoup de rouleaux et avec beaucoup de segments dans le commutateur, donne un courant plus régulier. Il y a aussi plusieurs aimants dans un générateur pratique. Dans n'importe quel générateur, on appelle l'assemblage entier portant les rouleaux l'armature, ou le rotor, pendant que les parties stationnaires constituent le stator. Sauf en cas de la magnéto, qui utilise des aimants permanents, le courant alternatif et les générateurs de courant continu utilisent des électro-aimants. Le courant de terrain pour les électro-aimants est le plus souvent le courant continu d'une source externe. La dynamo de terme est souvent utilisée pour le générateur de courant continu; le générateur dans les applications automotrices est d'habitude une dynamo. On appelle un générateur de courant alternatif un alternateur. Pour atténuer des problèmes de construction différents, les alternateurs ont une armature stationnaire et des électro-aimants tournants. La plupart des alternateurs produisent un courant alternatif de polyphase, un type complexe de courant qui fournit un écoulement de pouvoir plus lisse que fait le courant alternatif simple. De loin la plus grande quantité d'électricité pour l'utilisation industrielle et civile vient de grands générateurs de courant alternatif conduits par les turbines à vapeur.

RÉSUMÉ DE L'INVENTION
C'est un objectif de la présente invention de fournir une source d'énergie qui produit plus d'énergie que la source d'énergie exige pour opérer.

C'est un deuxième objectif de la présente invention de fournir un système qui utilise l'énergie d'excès produite par la source d'énergie au pouvoir d'autres artifices différents.

C'est un troisième objectif de la présente invention de fournir une source d'énergie à fournir le pouvoir des artifices différents sans la dépendance à une source d'énergie externe pour fournir le pouvoir de la source d'énergie de la présente invention.

La présente invention fournit une source d'énergie qui est capable de la production de plus d'énergie qu'il exige pour opérer. L'énergie d'excès est utilisée aux artifices de pouvoir. Une approche de boucle d'asservissement est utilisée pour canaliser une portion de l'énergie produisent par le générateur en arrière au port de puissance consommée de générateurs. Cette approche de boucle d'asservissement permet au générateur d'utiliser sa propre énergie produite d'opérer. L'énergie supplémentaire produite par le générateur est utilisée au pouvoir d'autres artifices qui peuvent être raccordés au générateur.

Dans la méthode pour l'invention une source de pouvoir externe comme une batterie est utilisée pour au départ fournir le pouvoir de commencer un alternateur et un générateur. Dès que le système a commencé ce n'est pas nécessaire pour la batterie de fournir le pouvoir du système. La batterie peut alors être débranchée. L'alternateur et le travail automobile électrique dans la combinaison pour produire la génération électrique. L'alternateur fournit cette génération électrique à deux inverters. Une partie de productions inverter de son pouvoir de la lampe charge l'artifice et la partie en arrière au moteur/générateur électrique. Ce pouvoir est eu recours au pouvoir le moteur électrique. Deuxième inverter fournit le pouvoir des artifices de charge spécifiques qui sont raccordés au système.

DESCRIPTION DES DESSINS
Fig.1
est une configuration d'une implémentation du pouvoir intérieur le système produisant de la présente invention.

Fig.2 est une configuration d'une personnification alternante du pouvoir intérieur le système produisant de la présente invention.

DESCRIPTION DE L'INVENTION



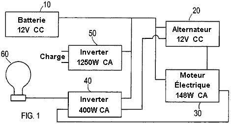
Cette invention est un artifice produisant pouvoir électrique qui produit plusieurs fois plus de pouvoir qu'il prend pour faire marcher ce système. Cette invention comprend une première source de pouvoir qui est raccordée à une deuxième source de pouvoir. Se rapportant à la Fig.1, le système de la présente invention comprend une source de batterie 10 (le courant continu de 12 volts) qui communique à un alternateur électrique 20. La batterie fournit le pouvoir initial du système pour lancer/commencer l'opération de l'alternateur. La présente invention peut exécuter d'autres sources de pouvoir en plus de la batterie illustrée pour fournir le pouvoir initial du système. Dans le modèle initial de la présente invention a incorporé un alternateur d'un Gendarme Isuzu 1997. L'invention incorpore des 30 automobiles électriques (le courant alternatif de 148 watts). Le moteur électrique communique à un inverter 40 (le courant alternatif de 400 watts). Le système comprend aussi une seconde inverter 50. La batterie 10 communique aussi tant à inverters 40 qu'à 50. Chaque inverter a deux productions. Pour premier inverter 40, une production s'introduit dans les 30 automobiles électriques pour fournir à la combinaison d'alternateur et au moteur. L'autre production s'introduit dans un artifice de lampe 60. L'artifice de lampe est une lampe de courant alternatif de 60 watts. Cet artifice de lampe change le courant voyageant de l'inverter 40 tel que le courant s'introduisant dans les 30 automobiles électriques n'est pas purement inductif.

Bien que, Fig.1 montre un artifice de lampe, d'autres charges peuvent être utilisées pour l'accomplir même une tâche. L'inverter 40 a une contribution dont l'inverter reçoit le pouvoir de l'alternateur 20. Deuxième inverter 50 a aussi une contribution qui reçoit aussi le pouvoir de l'alternateur.

Dans l'opération, au départ, la batterie 10 est utilisée pour fournir le pouvoir de commencer l'alternateur 20 et le générateur 30. Dès que le système a commencé, ce n'est pas nécessaire pour la batterie de fournir le pouvoir du système. La batterie peut alors être débranchée. Une fois commencé, l'alternateur 20 et 30 travail automobile électrique dans la combinaison pour produire la génération électrique. L'alternateur fournit cette génération électrique à deux inverters 40 et 50. Inverter 40 partie de productions de ce pouvoir de la lampe 60 et de la partie aux 30 automobiles électriques. Ce pouvoir est eu recours au pouvoir le moteur électrique. Deuxième inverter 50 pouvoir de réserves des artifices de charge spécifiques qui sont raccordés au système. Ces artifices de charge peuvent être n'importe quels artifices qui opèrent en utilisant la génération électrique.

L'aspect clé de la présente invention est la boucle entre l'alternateur 20, les 30 automobiles électriques et premier inverter 40. Une portion du pouvoir produit par le moteur électrique est recyclée et est utilisée au pouvoir le moteur électrique. De cette manière le système produit le pouvoir à l'intérieur qui est utilisé au pouvoir le système. Ce concept fait ce système un pouvoir de soi le système produisant.


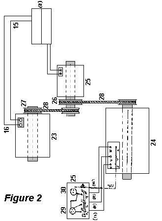
Fig.2 montre une personnification alternative du pouvoir le système produisant de la présente invention. Cette personnification incorpore une boîte de matériel 70, un démarreur automobile 72 et un générateur de brosse de tête 74 et un booster de mâle 76. Au départ, le démarreur automobile 72 travaux avec la batterie pour fournir le pouvoir du générateur. Ce processus est semblable au processus de commencer une voiture. Le levier de vitesse 70 augmentations tr-min du générateur. Le Booster de Mâle 76 exerce les fonctions de la production pour fournir le pouvoir des charges différentes. Cette configuration incorpore aussi un convertisseur de courant continu 78.


La Cellule Nitrol.
Ce document a été à l'origine produit à la demande d'un homme australien qui a dit que la cellule travaillait bien pour lui, mais qu'il a eu peur de publier les détails lui-même. Ce document a été préparé, approuvé par lui et publié. Ce s'est avéré très populaire et un groupe d'enthousiaste a été remis sur pied pour le construire et évaluer “la Cellule de Nitro”.

Les résultats de ce bâtiment et de mise à l'essai ont été les plus peu satisfaisants. Autant que je prends conscience, la cellule pas un seul ne s'est avérée réussie dans le branchement d'un moteur. Je donc, a retiré le document, depuis bien que je croie que ce soit capable du travail, le fait que beaucoup de personnes ont manqué de le recevoir le travail m'indique que ce document ne devrait pas être dans un guide "pratique". J'ai été assuré par deux sources indépendantes séparées, dont les deux j'estime comme étant des sources sûres, qu'il y a "des centaines" de ces cellules travaillant en Australie et Etats-Unis. On me demandait plusieurs fois des copies de ce document, donc je le publie de nouveau, mais vous demande, le lecteur, prendre conscience qui vous devrait faire un de ces artifices, qu'il est improbable que vous le receviez opérationnel. Ayant dit que, je comprends qu'il peut travailler très bien comme un booster.

L'arithmétique simple s'est appliquée à la performance réclamée de cet artifice, spectacles si qu'une grande partie du kilométrage réclamé doit avoir été couverte sans utiliser n'importe quel combustible du tout. Pendant que cela semble impossible, dans le fait réel ce n'est pas, mais ce genre d'opération vient de Joe Cell qui est notoirement difficile de devenir opérationnel, en exigeant qu'au moins une semaine d'embrouille autour de pour recevoir le travail des métaux du véhicule mis en ligne avec le champ d'énergie ait eu l'habitude de fournir le pouvoir de motif. Aussi, chaque personne agit comme "un dipôle" qui produit un champ d'énergie autour de cette personne. La plupart des personnes ont une polarité qui s'oppose à l'énergie de Joe Cell et ils ne recevront jamais Joe Cell pour opérer comme ils peuvent en désorganiser une telle cellule de plusieurs pas loin. Le chapitre 9, qui décrit Joe Cell, inclut des informations sur comment inverser votre propre polarité personnelle, arrêter de bloquer la performance de cellule.

Cela semble sans doute incroyable, mais comme il arrive à être la voie que les choses sont vraiment, il y a peu de point dans la simulation autrement. Personnellement, je ne recommande jamais personne de construire Joe Cell pour brancher un véhicule, comme la probabilité de succès est si basse. Pourtant, ayant dit que, un ami mien aux Etats-Unis fait raccorder son Joe Cell à son camion dans le mode "de panaché" où le carburateur est quitté raccordé à c'est des réserves de combustible fossile normales. Le véhicule est tout à fait capable du dessin dans le combustible fossile pour diriger le moteur, mais il ne fait pas juste. Sa consommation du combustible est littéralement le zéro et il conduit autour de force uniquement par l'énergie canalisée dans le moteur par Joe Cell. C'est le plus inhabituel et je ne vous recommande pas passant le temps et l'argent en construction d'une telle cellule. Je mentionne ces cellules pour que vous puissiez savoir tous d'eux, mais je l'y quitterais.

Voici le " D18 "document original, qui est suivi par les informations de mise à jour importantes :

Un Différent Combustible

Aux premiers jours plus lourd que le vol aérien, les observations ont été faites et basées sur ces observations, les règles opérantes pratiques ont été déduites. Après un temps, ces règles sont devenues appelées "les lois" d'aérodynamique. Ces "lois" ont été appliquées au design, en construisant et à l'utilisation d'avion et ils étaient et sont, très utiles.

Un jour il a été remarqué que si vous appliquez ces lois d'aérodynamique aux bourdons, ensuite selon ces lois, ce n'était pas possible pour une abeille de voler puisqu'il y avait juste pas assez d'ascenseur produit pour recevoir l'abeille de la terre. Mais l'observation simple montre que les abeilles volent vraiment en fait et ils peuvent monter de la terre quand ils veulent faire ainsi.

Signifie-t-il "que les lois" d'aérodynamique ne sont aucun bien ? Évidemment pas, comme on leur a montré pour être utile quand s'occupant de l'avion. Qu'il a vraiment montré était que les lois existantes n'ont pas couvert chaque cas, donc la recherche a été faite et les lois d'aérodynamique ont été prolongées pour inclure les équations pour l'ascenseur produit par l'écoulement turbulent. Ceux-ci montrent comment une abeille peut développer assez d'ascenseur pour descendre de la terre. Les abeilles s'en soucient-elles ? Non, pas du tout, ils ne continuent juste à voler comme auparavant. Ce qui a changé est que la compréhension de scientifiques et d'ingénieurs a été prolongée pour mieux correspondre au monde autour de nous.

Aujourd'hui, les gens qui sont entraînés dans la science et l'ingénierie sont nourris l'idée que les moteurs à combustion intérieurs doivent consommer un combustible fossile pour opérer. Ce n'est pas sévèrement vrai et à présent, les moteurs en utilisant du gaz hydrogène comme un combustible devient ordinaire. Malheureusement, la plupart de l'hydrogène produit pour cette utilisation, vient des combustibles fossiles, donc ces véhicules courent toujours sur un combustible fossile, bien que seulement indirectement.

"Les lois" d'ingénierie disent que ce n'est pas possible pour un moteur à combustion intérieur de courir sans consommer une sorte de combustible. Malheureusement, Josef Papp a démontré un moteur à combustion intérieur qui a eu c'est la consommation et les systèmes d'échappement barrés. Rempli d'une mixture de gasses inerte, pendant une démonstration, que le moteur de Volvo a dirigée pendant la demi-heure, en produisant un 300 cheval-vapeur mesuré et n'en consommant apparemment aucun combustible du tout. Josef a reçu le brevet des Etats-Unis 3,680,432 pour son moteur et vous pouvez voir une vidéo d'un de ses moteurs courant ici. Robert Britt a conçu un moteur cacheté semblable rempli d'une mixture de gasses inerte et il a reçu le brevet des Etats-Unis 3,977,191 pour cela.

Signifie-t-il que les lois actuelles d'ingénierie sont inutiles ? Bien sûr pas, ils sont indispensables pour la vie quotidienne aujourd'hui. Qu'il signifie vraiment, pourtant, est que les présentes lois doivent être prolongées pour inclure les effets montrés par ces moteurs.

Une autre chose largement acceptée est aujourd'hui qu'un moteur à combustion intérieur ne peut pas utiliser de l'eau comme un combustible. Bien .... le quittons à un côté pour le moment et le regardons d'un légèrement différent angle. Les moteurs peuvent sans doute diriger l'air d'utilisation et l'hydrogène comme le combustible, il n'y a aucun argument de que comme il y a beaucoup de véhicule autour dont font juste cela. Si vous passez un courant par l'eau, l'eau se désagrège dans le gaz d'oxygène et de gaz hydrogène, on appelle cette mixture le gaz “hydroxy” et cela peut le plus sans doute être utilisé, avec l'air, comme le combustible pour un moteur à combustion intérieur. Mais ... ce gaz est venu de l'eau, donc il est vraiment correct de dire que l'eau ne peut pas être utilisée comme le combustible pour un moteur à combustion intérieur ?

Ah, dit quelqu'un avec le relief, qui n'est pas le cas, parce que vous utilisez de l'eau et de l'électricité pour recevoir le combustible pour le moteur. Mais ... le véhicule moyen actionné par un moteur à combustion intérieur, a un alternateur qui produit l'électricité quand le moteur court, ainsi il y a une source d'électricité pour faire l'électrolyse de l'eau et produire le gaz pour diriger le moteur.

Mais les lois d'ingénierie disent que vous ne pouvez pas recevoir assez d'électricité de l'alternateur pour produire assez de gaz pour diriger le moteur. Les ingénieurs montreront au travail de Faraday qui a examiné le processus d'électrolyse dans le grand détail et a produit "les lois" d'électrolyse. Ces lois montrent que vous ne pouvez pas recevoir assez de génération électrique d'un moteur pour faire assez de gaz pour diriger le moteur.

Malheureusement, il y a eu plusieurs personnes qui ont fait juste que, donc nous avons atteint le point à temps quand ces "lois" doivent être prolongées pour couvrir des cas non couverts par le travail de Faraday. Les gens ont de 300 % à 1,200 % de la production du gaz que Faraday a considéré d'être le maximum possible. Plusieurs personnes ont dirigé des véhicules sur le gaz hydroxy produit par l'électrolyse d'eau en utilisant l'électricité produite par l'alternateur du véhicule. Cela montre clairement qu'il peut être fait et comme conséquence, "les lois" doivent être prolongées pour inclure les plus nouvelles techniques.

En le laissant de côté pour le moment, il y a eu au moins deux personnes qui ont dirigé au pouvoir un moteur avec l'eau comme le seul combustible et sans utiliser l'électrolyse. Dans ce cas, un spray parfait de gouttelettes d'eau à l'intérieur du cylindre est interprété sur par l'étincelle et des réserves électriques secondaires d'un inverter promeuvent l'étincelle, en formant un renvoi de plasma. Le résultat est un coup de pouvoir presque aussi puissant que l'utilisation d'un combustible fossile. Pour le moment, permettez-nous d'ignorer aussi ce style d'opération.

Ce document décrit un autre système qui utilise de l'eau et de l'air comme les combustibles primaires, mais de nouveau, n'utilise pas d'électrolyse pour produire du gaz hydroxy pour l'utilisation dans le moteur. Au lieu de cela l'objectif est de créer des réserves continues d'Hydroxyde d'Azote (NHO2) pour l'utilisation comme le combustible. Ce système a travaillé bien pour un certain nombre de personnes, mais il y a eu l'intimidation considérable et la plupart de ces gens rechignent très à transmettre les informations. Ce document est un essai de présenter ces détails assez clairement pour permettre au système d'être copié par quelqu'un qui veut faire ainsi.

Ainsi comment exactement c'est le combustible produit ? La méthode de production est décrite comme le gaz du combustible étant synthétisé par une mixture d'eau de ruisseau et de sel de roche (le minéral "halite") en présence de l'air, étant interprété sur par le moteur "le vide", l'électrolyse et un fort champ magnétique. Ce combustible est dit être plus puissant que l'hydrogène et est une source beaucoup plus réalisable du combustible comme moins de cela est nécessaire pour diriger un moteur à combustion intérieur.

Ce système peut être utilisé avec n'importe quel moteur à combustion intérieur, si utilisaient dans un véhicule ou stationnaire en branchant un générateur électrique ou d'autre équipement. L'équipement supplémentaire se compose d'un, ou plus, les cylindres horizontaux montés près du moteur. Un simple, horizontalement monté, le cylindre peut produire du gaz suffisant au pouvoir un moteur à combustion intérieur jusqu'à deux litres dans la capacité. De plus grands moteurs auront besoin de deux cylindres pour produire assez de gaz pour eux pour opérer.

Il doit être souligné que ce n'est pas une cellule d'électrolyse hydroxy du gaz. Un véhicule d'essai a été dirigé sur ce système pour une distance de 3,000 miles (4,800 kilomètres) et le combustible liquide utilisé était seulement 2 litres d'eau et de 2 gallons d'essence. Deux litres d'eau convertie au gaz hydroxy iront faire sans doute pas le pouvoir un moteur de véhicule pour n'importe quoi comme 3,000 miles, permettez-moi si de souligner de nouveau que le combustible étant produit dans cette cellule est l'Hydroxyde d'Azote (NHO2). Il devrait être noté que si la cellule décrite ici est utilisée comme un booster pour le combustible fossile original, donc il ne sera pas nécessaire de moderniser le moteur en correspondant aux valves d'acier inoxydable, les anneaux de piston, le système d'échappement, etc.

La personne utilisant ce système qui est montré à la photographie suivante, a opté pour un exceptionnellement long tube de génération attaché à son générateur stationnaire :


Les versions de ce design de cellule montré à la photographie précédente et à la photographie suivante, sont de premiers modèles qui étaient dans l'utilisation avant qu'il a été découvert qu'il y avait une majoration considérable dans la production du gaz si un rouleau est emballé autour du cylindre.

Pour l'opération de véhicule, il est plus normal d'avoir un cylindre plus court, (ou la paire de cylindres si la capacité de locomotive est grande) comme peut être vu à la photographie suivante de 4 litres, le moteur de véhicule de 8 cylindres qui utilise ce système. Les moteurs de capacité de jusqu'à 2 litres peuvent être actionnés par une cellule horizontale simple, pendant que deux cellules sont utilisées pour de plus grands moteurs.


Les détails de construction ne sont pas difficiles de suivre et le matériel nécessaire n'est pas particulièrement difficile de trouver, ni cher d'acheter. Le corps principal de l'artifice est construit comme montré dans le diagramme suivant. Une chambre est construite d'un morceau de 316L la Qualité (la qualité de nourriture) la pipe d'acier inoxydable, 300 millimètres (12 pouces) longtemps et 100 millimètres (4 pouces) dans le diamètre. La longueur de 300 millimètres est choisie pour l'avantage d'essayage dans le compartiment de locomotive d'un véhicule. S'il y a l'abondance de pièce là, la longueur peut être prolongée pour la meilleure performance du gaz et la capacité d'eau. Si c'est fait, gardez le diamètre de cylindre de 100 millimètres et toutes les dimensions de déblayage mentionné ci-dessous.

La chambre est cachetée à chaque fin avec 12 millimètres (la moitié du pouce) les disques épais faits de "Lexan" (un très fort thermoplastique de résine de polycarbonate). Ces disques ont 3 millimètres (1/8”) le sillon profond coupe dans leurs visages intérieurs. Le sillon se trouve présent pour le cylindre pour s'inscrire quand les disques sont serrés dans l'endroit et tenus par les noix d'acier inoxydable serré sur 10 millimètres (3/8”) l'acier inoxydable a enfilé la baguette. Pour combattre la vibration de locomotive, une noix de serrure est utilisée pour serrer les noix de retenue dans l'endroit. La baguette enfilée fournit aussi le point de contact au côté négatif des réserves électriques et un verrou d'acier inoxydable est TIG soudé à l'extérieur du cylindre pour former le point de connexion pour le côté positif des réserves électriques.


Ce récipient fondamental est modifié d'un certain nombre de façons. Premièrement, petits 3 millimètres (1/8 le pouce) la pipe de prise d'air de diamètre sont fournis dans un des disques Lexan. Cette prise d'air est fournie avec une valve d'aiguille qui est vissée fermement fermée pour les premiers stades de mise à l'essai et s'est seulement atténuée légèrement ouvert quand le moteur court vraiment .

Aussi correspondu est 12 millimètres (1/2”) la pipe d'acier inoxydable, attachée au cylindre d'acier inoxydable pour former un gaz fournit la nourriture au moteur. Une valve à sens unique est placée dans cette pipe comme les demandes de design du cylindre à être maintenu à une pression qui est moins que l'atmosphère extérieure. Plus bas la pression à l'intérieur de la cellule, plus grand le taux de production du gaz. La valve à sens unique permet l'écoulement dans le moteur, mais bloque n'importe quel écoulement du moteur dans le cylindre. Cette valve est le même type qu'est utilisé dans le système de booster de breake à vide du véhicule.

La pipe d'issue du gaz est continuée de la valve à sens unique en utilisant la tuyauterie de plastique de quelques pouces. Cela doit prévenir une connexion électrique entre le cylindre d'acier inoxydable qui est raccordé au côté positif des réserves électriques et du collecteur de locomotive qui est raccordé au côté négatif des réserves électriques. Si cette pipe était en métal entièrement, donc cela créerait un court-circuit électrique direct. La pipe courant au collecteur de consommation de locomotive doit être faite du métal dans la région près du moteur, en raison de la haute température de locomotive, donc la pipe d'acier inoxydable devrait être utilisée pour la dernière partie du gaz fournissent la pipe courant au moteur. L'essayage de pipe de réserves du gaz est rendu aux plus centraux de bouchons correspondu au collecteur.

Pour la période de mise à l'essai initiale, un port de plombage avec un bonnet de vis est monté sur le haut du cylindre, pour permettre à de l'eau à l'intérieur d'être dépassée en haut comme nécessaire. Plus tard sur, si de longs voyages sont faits sur une base régulière, donc il vaut la peine de correspondre à un réservoir séparé d'eau, un détecteur de niveau d'eau et un système d'injection d'eau en utilisant une pompe d'eau de machine à laver de pare-brise de véhicule standard. Le nappage est en haut fait avec l'eau seule comme l'additif de sel de roche ne s'habitue pas dans le processus et ainsi n'a pas besoin d'être remplacé. Avec ces caractéristiques supplémentaires, la cellule de génération du gaz y ressemble :


Il y a un pas de plus et cela doit ajouter un cylindre intérieur de 316L l'acier inoxydable de qualité. Ce cylindre est 274 millimètres (10.75 pouces) longtemps et 80 millimètres (3.15”) dans le diamètre. Les deux cylindres ont une épaisseur murale de 1 millimètre. Le cylindre intérieur est soutenu sur le bar enfilé central et il est serré dans l'endroit avec la retenue des noix. Un soutien traîne est créé en faisant deux coupes à chaque fin du cylindre, en forant un trou et en tournant ensuite le fait de traîner en haut à l'intérieur du cylindre à angle droit à son axe. Cela doit être fait exactement, autrement le cylindre intérieur ne sera pas parallèle à la baguette enfilée, ou autrement, ne pas sera centré sur la baguette enfilée. Le centre de 10 millimètres (3/8”) le trou est placé 8 millimètres (5/16”) dans à partir de la fin du cylindre. Deux 48 millimètres (1.9”) de longues coupes sont rendues chaque côté du trou, placé pour être environ 5 millimètres (3/16”) libre du trou - cette mesure n'est pas critique. C'est fait à chaque fin du cylindre et les trous sont placés exactement en face de l'un l'autre, le long de l'axe du cylindre, comme montré ici :


Le cylindre intérieur est protégé dans la position par deux verrous comme montré ici :


Les noix intérieures sont manœuvrées sur l'intérieur sur du fait de traîner à la main et ensuite la baguette enfilée est tournée pour déplacer une noix à l'intérieur de l'autre traîner, pendant que la plus proche noix est tenue pour le prévenir le fait de faire tourner. Quand la baguette est placée correctement et les noix intérieures sont appuyées en haut durement contre le fait de traîner, ensuite une clé de serrage de boîte est utilisée pour fermer les noix extérieures fermement contre le fait de traîner, en formant une forte serrure montante.

Le cylindre intérieur est inséré à l'intérieur du cylindre extérieur, les disques de fin de Lexan sont alors ajoutés et les noix de serrure extérieures ajoutées pour produire cet arrangement :


Cela donne un déblayage de 9 millimètres entre les deux cylindres et ce trou tend 360 degrés autour des cylindres. Le cylindre intérieur est trouvé 10 millimètres libres des disques de fin de Lexan.

Les unités sont accomplies en enveloppant un rouleau de fil couleur cuivre isolé de diamètre de 2 millimètres fermement autour de la longueur complète du cylindre extérieur et en remplissant l'unité avec l'électrolyte à un niveau de 3 millimètres (1/8 le pouce) au-dessus du haut du cylindre intérieur comme montré ici :


Le fil utilisé pour le rouleau est le lourd fil de cuivre de devoir avec un diamètre intérieur de 2 millimètres, c'est-à-dire. 14 SWG britanniques télégraphient ou 12 fil d'AWG américain. Le rouleau est tenu dans la position aux fins du cylindre, avec les liens câblés de plastique, comme ceux-ci sont non-magnétiques. Ce rouleau est de l'importance importante dans ce design comme le fort champ magnétique produit par cela a un effet très marqué sur la performance de la cellule. Le champ magnétique produit par ce rouleau, augmente la production du gaz par n'importe quoi de 30 % à 50 % et augmente la production d'Hydroxyde d'Azote par un facteur de dix fois. La connexion électrique du rouleau est en série avec la cellule, donc la batterie positive n'est pas prise directement au verrou soudé au cylindre extérieur, mais plutôt il traverse le rouleau enveloppant avant être raccordé au cylindre extérieur.


Installation et Utilisation
La pipe d'issue du gaz est raccordée directement à un port à vide directement au-dessous du carburateur sur le collecteur du moteur. Cette connexion est importante comme la cellule compte sur "le vide" (la pression d'air vraiment réduite) produit par le coup de consommation de locomotive, comme faisant partie c'est le processus formant gaz.

La méthode exacte pour monter la cellule dans un véhicule dépend du véhicule, donc c'est quelque chose à laquelle vous aurez besoin de bien réfléchir pour vous. Soyez sûrs que vous isolez la cellule de la carrosserie en métal du véhicule et je suggérerais que vous le tenez à distance du haut voltage l'installation électrique électrique (le rouleau, le distributeur, la bougie mène, etc.).

L'arrangement de connexion électrique est comme montré ici :



Ou pour de plus grands moteurs :



La méthode pour la connexion électrique est importante. Il est indispensable que les réserves électriques soient débranchées quand le moteur ne court pas. Pour cette raison, le pouvoir de la cellule (s) est pris via le changement d'ignition du véhicule. Pour ne pas charger ce changement excessivement, un équipe de relais automoteur standard est utilisé pour porter le courant principal, en quittant juste le courant d'équipe de relais à être manipulé par le changement d'ignition. Aussi, un 30 disjoncteur d'ampère ou un fusible sont placés dans le circuit, tout de suite après la connexion de batterie. Dans l'événement improbable d'un problème physique avec la cellule se produisant, cet artifice débranchera le pouvoir immédiatement et évitera n'importe quelle possibilité d'un court-circuit provoquant un feu, ou du gaz d'excès étant produit quand ce n'est pas nécessaire

L'eau à être utilisée dans cette cellule doit être choisie soigneusement. L'eau de robinet n'est pas acceptable comme il sera contaminé avec plusieurs additifs - le fluor, le chlore, l'installe etc. en passant par le processus de purification de la compagnie de réserves et de beaucoup d'autres produits chimiques ramassés le long de la voie. Il est estimé très important que l'eau être pris d'un ruisseau, de préférence d'où il monte, comme c'est le point de la plus grande pureté. Peux je suggérer aussi que l'eau être transportés dans les récipients de verre ou dans les récipients d'acier inoxydable comme ceux-ci aident à maintenir la pureté. Évitez des récipients de plastique, parce que pendant que ceux-ci ont l'air d'être complètement inertes, ils sont souvent le plus sans doute pas et les produits chimiques de leur fabrication et font, peut entrer dans n'importe quel liquide contenu dans eux.

La cellule est remplie à une profondeur de 25 millimètres à 1 pouce au-dessous du haut du cylindre extérieur et ensuite (dans la première occasion seulement) un ou deux grains de sel de roche sont ajoutés à la cellule. Cette adjonction doit être minimale comme il contrôle l'attraction actuelle du système électrique et de la force du champ magnétique créé par ce courant. Après le fait d'utiliser la cellule depuis au moins une semaine, si le taux du gaz n'est pas adéquat, ajoutent donc encore un grain de sel de roche.

L'accomplissement de la cellule accordée au véhicule prendra probablement au moins une semaine d'utilisation. La cellule est mise en place et le véhicule dirigé en utilisant c'est le combustible normal. La valve d'aiguille sur la prise d'air de la cellule est gardée complètement fermé pendant cette période. L'inventeur a opté continuer à diriger son moteur sur de très petites quantités d'essence plus ce nouveau combustible du gaz - le résultat étant 3,000 miles couverts sur juste deux gallons d'essence. Si vous le considérez comme étant toujours une essence a actionné le véhicule, donc l'accomplissement de 1,500 mpg est une réalisation vraie - je m'en contenterais bien sûr.

Quand la cellule est d'abord raccordée, vous remarquerez que les tic-tacs de locomotive sur plus vite et s'occupent du révérend plus qu'il a fait auparavant. Il prendra plusieurs jours pour le système pour s'arranger. On croit que la partie de cela est l'effet du nouveau rouleau magnétique dans le compartiment de locomotive. Il peut être que les parties en métal du véhicule doivent prendre un alignement magnétique qui correspond au champ magnétique produit par la cellule. Si c'est ainsi ou pas, il prendra quelques jours avant que le système s'arrange dans son état final.

Il devrait être rendu compte que si le véhicule a un ordinateur de contrôle du combustible avec un détecteur d'oxygène monté dans le ruisseau épuisé, donc le signal de détecteur d'oxygène aura besoin d'être réglé. Le document D17.pdf de cette série, les spectacles en détail comment le faire, le devrait être nécessaire. Si le véhicule a un carburateur, donc il y a un avantage dans l'essayage à un carburateur d'ennui d'un pouce du type trouvé sur les tondeuses, comme cela promeut la pression plus basse à l'intérieur du collecteur et promeut la bonne opération de cellule comme plus bas la pression (ou le plus grand "le vide"), devient plus haut le taux de production du gaz.


Détails Pratiques
Les morceaux de fin originaux ont été coupés et se sont amusés en utilisant un tour. La plupart des personnes ne possèdent pas ou ont l'approche à un tour donc une méthode alternative pour couper les disques doit être utilisée. La partie essentielle de cette opération doit couper un sillon exact pour prendre l'acier inoxydable de 100 millimètres le cylindre extérieur. Le sillon doit être coupé exactement comme il doit former un sceau à clôture hermétique sur la fin du cylindre. Par conséquent, la fin du cylindre et du fond du sillon, les deux besoin d'être droit et vrai s'ils doivent s'accoupler solidement.

Une méthode alternative doit utiliser un attachement de foreuse de coupeur de trou ajustable. Si c'est utilisé avec une presse de foreuse ou un adaptateur d'éventaire vertical pour une foreuse électrique de mains, donc si le soin est pris, un sillon exact des dimensions correctes peut être coupé. Comme une précaution supplémentaire, une couche fine de qualité marine “SikaFlex blanc 291” enceinte de literie peut être utilisée dans le fond du sillon. Deux choses ici. Premièrement, utilisez seulement vrai Sikaflex 291 enceinte bien que ce soit bien plus cher que d'autres produits qui prétendent être des équivalents - ils ne sont pas, ainsi la paie pour le vrai produit. Deuxièmement, nous ne voulons pas la plus petite trace du Sikaflex le contactant de l'électrolyte si nous pouvons l'éviter, épargner ainsi très en quantité mise dans le sillon, peu importe que vous avez payé pour cela. Assurez-vous que l'enceinte de literie est placée seulement dans le même fond du sillon et pas sur les côtés. Quand le cylindre est forcé dans le sillon, une très petite quantité de l'enceinte sera conduite dans n'importe quel trou entre le cylindre et les côtés du sillon.

Ce qui est nécessaire est un résultat qui y ressemble :



L'autre partie importante de cette articulation est la fin du cylindre extérieur. Il est recommandé que le cylindre soit coupé à la main avec une scie à métaux pour éviter de produire la chaleur excessive qui peut affecter la structure du métal. Pour recevoir la fin exactement le carré, utilisez un morceau de papier d'imprimante. Cela a des bords droits et des coins carrés, emballez-le donc l'appartement autour du cylindre et de la manœuvre cela dans l'endroit pour que les bords chevauchants s'accordent exactement des deux côtés. Si le papier est plat et serré contre le cylindre et le match de bords exactement, donc le bord du papier sera une ligne vraie et carrée exacte autour du cylindre. La marque le long du bord du papier avec un crayon-feutre et utilise ensuite cette ligne comme un guide d'une coupe tout à fait carrée. Pour éviter la chaleur excessive, n'utilisez pas d'instrument de pouvoir comme un broyeur de montage sur le cylindre. Nettoyez juste les bords de la coupe doucement avec un dossier de mains.

Dans les diagrammes montrés plus tôt, la pipe du gaz, le bonnet d'entonnoir d'eau et la batterie le verrou de connexion positif ont tous été montré sur le haut du cylindre. C'est seulement pour leur montrer clairement et il n'y a aucun besoin de les faire placer comme ça. Vous remarquerez qu'ils tous arrivent dans la voie du rouleau métallique, qui n'est pas un avantage.

C'est nécessaire pour la pipe du gaz d'être placé en haut comme cela donne le meilleur déblayage au-dessus de la surface d'eau. Le déblayage devrait être maintenu à 25 millimètres (1 pouce). Le bonnet d'entonnoir d'eau qui a été montré sur le haut du cylindre, serait mieux placé sur un des bonnets de fin comme cela le garderait de la voie du rouleau de fil :


Cet arrangement a l'avantage qu'il n'exige pas à de trou d'entonnoir d'être foré par le cylindre d'acier.

C'est nécessaire pour la connexion électrique d'être soudé au cylindre, mais il n'est pas nécessaire d'avoir une tête sur le verrou comme ce arrive juste dans la voie du rouleau électrique. La meilleure stratégie est d'utiliser un plus long verrou de petit diamètre, enlever la tête et souder le puits dans l'endroit avec la tache soude qui n'arrivera pas dans la voie du rouleau, comme montré ci-dessous. La tache soude sont très rapides pour faire, mais même ils produisent beaucoup de chaleur dans la pipe. Certaines personnes préfèrent souder argent le puits de verrou au cylindre comme le chauffage est moins


Le verrou est gardé juste libre du bonnet de fin pour éviter de le polluer quand il est serré sur le cylindre. Une noix de serrure est utilisée pour garder l'assemblage d'étiquette soude libre du bord extérieur du bonnet de fin. Cela permet au rouleau métallique d'être la blessure directement jusqu'au verrou. Il n'importe pas que la fin du rouleau est raccordée au cylindre extérieur, mais le sens commun suggère que la fin la plus proche le verrou est raccordée au verrou. Il est, pourtant, important qu'une fois connecté, les connexions électriques au rouleau sont maintenues jamais ensuite, garantir que le champ magnétique reste dans la même direction. Souvenez-vous que les parties en métal entourantes du véhicule prendront une orientation magnétique correspondant à ce du champ magnétique du rouleau, donc vous ne voulez pas continuer à changer la direction du champ magnétique du rouleau.

En soudant le verrou au cylindre extérieur, soyez sûrs que vous utilisez le fil d'acier inoxydable. L'articulation doit être faite avec un MIG ou un soudeur TIG. Si vous n'avez pas un et ne pouvez pas louer un, donc votre magasin de fabrication en métal local fera la tache soude pour vous dans moins d'une minute et sans doute pas vous chargent pour les faire.

La qualité d'acier inoxydable dans les cylindres est importante. La qualité 316L est presque non-magnétique, ainsi si vous tenez le cylindre avec c'est des côtés verticaux et un endroit un aimant contre le cylindre, l'aimant devrait tomber sous son propre poids. Essayez cette épreuve peu importe quelle qualité l'acier inoxydable doit être, comme quelques aciers ne sont pas étiquetés correctement. Il y a une bonne chance que vous serez en mesure de trouver la tuyauterie convenable à votre cimetière de voitures local, mais être prudents sur sizing. Le trou de 9 millimètres entre le cylindre de diamètre de 100 millimètres extérieur et le diamètre de 80 millimètres du cylindre intérieur, est très important effectivement. Ce trou doit être 9 millimètres (11/32 le pouce) ainsi si vraiment nécessaire pour varier les diamètres légèrement en haut ou en bas, soyez sûrs de choisir la matière qui donne le trou correct entre les cylindres. Piping sans coutures est d'habitude préféré aux pipes qui ont des coutures comme le soudage de couture a tendance à produire un effet magnétique dans l'acier. Pourtant, si une pipe seamed passe l'épreuve d'aimant avec l'aimant le tombant, c'est la sans doute bonne matière pour la cellule.

Si vous pouvez le recevoir, une bonne matière pour 12 millimètres (1/2 le pouce) la pipe courant au collecteur de carburateur, est de l'aluminium. Souvenez-vous s'il vous plaît que la valve à sens unique sur la pipe de production de la cellule doit être raccordée à cette pipe avec une matière qui isole les deux composantes en métal. Piping suggéré est donc : la production de cellule est via un connecteur de pipe d'acier inoxydable, raccordé directement à la valve à sens unique, qui a alors une connexion de pipe de plastique au tube en aluminium qui court entièrement au collecteur. Souvenez-vous s'il vous plaît d'isoler la cellule des châssis de véhicule et des composantes pour éviter un court-circuit.

Une alternative à l'utilisation de "Lexan" assez cher pour les bonnets de fin, doit utiliser “UHMWP” - l'Ultra-haut Polyéthylène de Poids moléculaire qui est bon marché et facile d'obtenir comme les conseils coupant nourriture de plastique en sont d'habitude faits. L'avantage de Lexan consiste en ce que c'est transparent et donc le niveau de l'électrolyte peut être vu sans le besoin pour enlever le bonnet d'entonnoir d'eau.

Il a été suggéré que le nappage en haut de l'eau dans la cellule peut être automatique si vous voulez que ce soit ainsi. Pour cela, un circuit de détecteur de niveau d'eau est utilisé pour conduire une pompe d'eau de machine à laver de pare-brise standard quand le niveau de l'électrolyte tombe au-dessous du niveau de design. Le détecteur lui-même, peut être un verrou parcourant un des bonnets de fin comme montré ici :


Quand le niveau d'électrolyte tombe au-dessous du verrou supérieur, le contact de circuit au circuit de contrôle est cassé et le circuit répond en branchant en haut la pompe d'eau, qui injecte un peu d'eau pour apporter le niveau d'électrolyte font marche arrière à où il devrait être. Quand le véhicule bouge, la surface de l'électrolyte ne sera pas régulière comme montré dans le diagramme, donc le circuit de contrôle doit avoir une section de faisant en moyenne qui prévient la pompe d'eau étant allumée jusqu'à ce que la contribution de circuit ait manqué depuis plusieurs secondes.

L'ensemble de circuits convenable pour cela est montré dans le Chapitre 12 et il n'y a aucune raison pourquoi vous ne devriez pas concevoir et construire votre propre circuit pour cela.

Dans les stades initiaux de mise à l'essai et l'installation, en ajoutant du sel de roche, épargner très effectivement. Ajoutez juste un grain à la fois parce que les ions de sel sont très efficaces dans le fait de porter le courant par la solution d'électrolyte. Aussi, si trop est ajouté, il est difficile de réduire la concentration comme plus d'eau doit être ajoutée, qui implique de vider un peu d'eau déjà dans la cellule. Il est beaucoup plus facile de prendre votre temps et ajouter très, très peu de sel. Donnez l'abondance de grain de sel de temps pour vous dissoudre et vous disperser partout dans l'électrolyte avant le fait de vérifier la performance de cellule de nouveau.

Permettez-moi de vous rappeler que pendant la mise à l'essai de cellule initiale, la valve d'aiguille de prise d'air est fermée complètement et il n'est pas atténué ouvert jusqu'à ce que le moteur coure de manière satisfaisante. Dans le moteur acclimatisation la période, le moteur devrait être dirigé sur c'est le combustible normal et la cellule juste utilisée comme un booster. Souvenez-vous qu'il prendra au moins une semaine pour le véhicule pour s'arranger à c'est la nouvelle méthode pour l'opération. Il n'y a aucun empressement particulier, prenez ainsi votre temps et n'expédiez pas de choses.

Si le véhicule est correspondu avec le contrôle informatique des réserves du combustible, il peut être nécessaire d'appliquer un contrôle à l'unité en réglant le signal venant du détecteur d'oxygène placé dans le système d'échappement du véhicule. Les informations sur comment le faire sont montrées dans le détail considérable dans le Chapitre 10.

On a posé quelques questions à propos de cette cellule :

1. L'essence doit-elle être utilisée ou le moteur peut-il être dirigé sur la cellule seule ?

Réponse : non, vous pouvez finalement éliminer de l'essence entièrement, mais les courses de locomotive si franchement que le vieux carbone dépose autour des anneaux de piston et ailleurs sera nettoyé loin et les composantes peuvent se rouiller. Ces parties peuvent finalement être remplacées avec les versions d'acier inoxydable ou au lieu lequel, il est sans doute possible d'éviter que les remplacements par l'utilisation de l'additif de pétrole appelé “Vacclaisocryptene QX and Molybdenum Disulfide” - voient ici pour les détails. Cet additif réduit des vêtements à un tel degré que la vie de locomotive peut être doublée, peu importe quel combustible est utilisé.


2. Pourquoi l'unité est 300 millimètres de long ?

Réponse : Juste pour l'avantage dans l'essayage à cela dans le compartiment de locomotive. Il peut facilement être plus long si l'espace le permet. Plus long l'unité, plus grand la production du gaz et c'est pour pourquoi deux cellules de 300 millimètres sont nécessaires pour les moteurs plus de 2 litres dans la capacité.


3. Le corps de cellule a-t-il besoin d'être fait du tube sans soudure ?

Réponse : l'acier inoxydable de 316L-qualité sans coutures est préféré.


4. Comment déterminez-vous la quantité de sel de roche pour ajouter à l'eau dans la cellule ?

Réponse : la quantité varie avec le type et la grandeur de moteur étant traité. Vous voulez le courant minimal par le rouleau ainsi le début avec un grain et l'augmentez seulement très progressivement avec les quantités très petites. Si la cellule est montée dans le compartiment de locomotive d'un véhicule, donc le fait de faire, le modèle et la grandeur du véhicule affecteront la quantité en raison de l'effet magnétique de composantes en métal près de la cellule.


5. Importe-t-il que fin du rouleau est attachée au cylindre extérieur ?

Réponse : non, cela peut être l'un ou l'autre la fin.


6. Le diamètre de pipe est-il montré de la cellule au moteur la meilleure grandeur ?

Réponse : le diamètre de pouce 1/2 est très bon comme il augmente "le vide" à l'intérieur de la cellule comme les courses de locomotive. En évaluant d'abord le moteur, souvenez-vous que la valve d'aiguille est complètement arrêtée et quand il est ouvert pendant le fait d'accorder, il est seulement ouvert à un cadre minimal.


7. Les émissions épuisées sont nuisibles à l'environnement ?

Réponse : Il y a quelques années, un concessionnaire d'automobiles de Mercedes a dirigé sa propre épreuve d'émissions sur un nouveau gazole de Mercedes, en utilisant son propre équipement. Il a constaté que les émissions ont été réduites de 50 % et le pouvoir de locomotive a augmenté de 12 %. Le moteur a couru mieux, plus propre et plus silencieux. Il a été renvoyé pour le faire.

D'autres épreuves d'analyseur du gaz indépendantes ont montré qu'il y a une augmentation dans les émissions d'eau et une goutte dans les émissions de carbone comme moins de combustible fossile est utilisé. Il a été aussi noté que le volume de gaz produit par la cellule a été affecté par où il a été monté dans le compartiment de locomotive. On pense que ce soit en raison de l'effet magnétique sur la cellule.

Permettez-moi s'il vous plaît de souligner de nouveau que beaucoup de personnes ont construit cet artifice et ont essayé de le recevoir pour travailler sans n'importe quel succès du tout et c'est pour pourquoi il est dans ce chapitre.

Pourtant, ayant mis l'accent sur ces inquiétudes et provisos, j'ai été informé au début de 2010, que Jim Bundock dans le Royaume-Uni a eu le succès considérable en utilisant ce design comme un booster. Il estime que l'utilisation de cet artifice l'a sauvé environ £500 au cours d'une période de deux année. Voici un détail de lui :



Ces deux cellules ont été dans l'utilisation dans deux différents véhicules depuis plus d'une année maintenant. Les véhicules sont des fourgonnettes de Transit de Ford avec les moteurs diesel de 2.5 litres. On a seize ans et l'autre a dix-sept ans et les Cellules Nitro ont donné une 10 amélioration mpg à partir du jour qu'ils ont été installés malgré les fourgonnettes étant lourdement chargées étant utilisé. L'original mpg était 25, donc la conséquence 35 mpg représente une amélioration de 40 % au cours d'un long terme.

Jim dit : ces cellules ont été construites des plans montrés ci-dessus, la seule variation l'étant au lieu de tourner les étiquettes pour la chambre à air, les étiquettes ont été soudées d'argent à la fin des chambres à air comme montré ici :



Ces cellules sont dirigées sans sel et ils travaillent tout aussi bien sans l'emballage métallique suggéré dans le design. La cellule verticale est 18 pouces grands et 4 pouces dans le diamètre et il a un diaphragme de caoutchouc sur le haut qui agit tant comme un sceau que comme un artifice d'antiboue. Le cylindre intérieur donne un trou de 9 millimètres entre les cylindres intérieurs et extérieurs. Les fins de cellule et les entretoises sont faits du conseil coupant nourriture de plastique. Les entretoises supérieures sont environ 30 millimètres de long comme il a été constaté que la vibration a eu tendance à expulser des plus courts. Cette cellule "lente" verticale est très facile de construire.

Sur une des unités horizontales "rapides", il y a une longueur de pipe bleue :



Cela empêche de l'eau d'entrer dans le moteur quand un certain racer-garçon essaie de négocier des coins à la vitesse de lumière. La cellule horizontale était plumbed dans l'utilisation d'une pipe de 12 millimètres de plastique raccordée au collecteur d'arrivée. Personnellement, je ne pense pas ces cellules comme la vitesse et ils semblent répondre le mieux en conduisant environ 50 miles à l'heure – c'est pour une cellule simple sur un moteur diesel. La cellule est télégraphiée dans comme la norme, seulement sur un gazole, l'équipe de relais est raccordé à la valve de raccourci du combustible, en le faisant très facile de télégraphier et quand le moteur est éteint, alors la cellule est éteinte en même temps. En utilisant une version miniature de la cellule droite, l'eau de trou de sonde que j'utilise, est pré-chargée sur le banc pour aussi longtemps que j'estime qu'il doit être, juste enlever un peu de matière suspendue dans cela. Le nappage en haut avec l'eau est fait tous 750 miles ou ainsi et prend d'un coquetier complet d'eau. Somme toute, la Cellule Nitro est un bon artifice travaillant honnête, c'est un morceau conduis-et-vais simple de kit qui m'a sauvé environ £500 dans deux ans et continuera à le faire pour toujours.


L’HydroStar et HydroGen Systèmes.
Il y a des ensembles différents des plans pour les conversions automobiles et beaucoup d'entre eux sont vains et voulus pour gaspiller le temps et l'argent des gens qui s'intéressent à partir des produits de combustible fossile. Ce n'est pas possible pour quelqu'un de dire avec l'assurance que ces plans ne travaillent pas depuis même si vous construisez dans la conformité exacte avec les plans et votre réplication manque de venir n'importe où près du travail, tout ce que l'on peut sans mentir dire est que votre propre réplication était inutile. Nous devons éviter cette sorte de commentaire, puisque par exemple, Joe Cell travaille vraiment effectivement et peut le pouvoir un véhicule dans un mode complètement du combustible moins, mais, la plupart des personnes manquent de le recevoir opérationnel. Par conséquent, il a tort complètement d'écrire Joe Cell en vitesse, mais avertissements sur la difficulté de le recevoir le travail devrait toujours être donné.

En cas de HydroStar et des plans HydroGen, je n'ai jamais entendu de personne qui recevait jamais n'importe lequel d'entre eux le travail. Aussi, les gens expérimentés sont tout à fait convaincus que le design est sérieusement détérioré et n'a jamais travaillé en premier lieu. Cependant, c'est à toi de décider s'y décider et donc ces plans sont mentionnés dans ce chapitre.

Les plans montrés ici peuvent être téléchargés libres de ici et ils sont destinés pour l'utilisation libre par quelqu'un qui veut les utiliser. Souvenez-vous s'il vous plaît que vous devrait décider d'entreprendre n'importe quel travail de cette nature, personne autre que vous n'est de toute façon responsable de n'importe quelle perte ou de dommage qui pourrait s'ensuivre. Le manuel complet pour une version essentiellement actualisée du design est inclus sous le nom "HydroGen" et peut être téléchargé libre de ici.

Il est recommandé qui devrait le travail expérimental a été entrepris sur une voiture, alors la voiture choisie devrait avoir peu de valeur et que toutes les parties existantes être gardées pour que le véhicule puisse être restitué à son présent pétrole de fossile brûlant le statut vous devraient vouloir faire ainsi. Il est aussi suggéré que vous utilisez une voiture qui n'est pas importante pour vos présents besoins de transport. Il est réclamé que la voiture modifiée voyagera 50 à 300 miles par gallon d'eau selon comment il est accordé. Le système est monté comme cela :


Ici, la voiture fait installer un réservoir supplémentaire pour contenir une réserve d'eau. C'est utilisé pour maintenir le niveau d'eau dans la chambre de réaction qui contient les plaques d'électrode. Les électrodes sont conduites par l'électronique qui leur applique waveform circulé dans les 0.5 à 5.0 gamme d'Ampère. La boîte d'électronique est actionnée directement de la voiture existante electrics. Le mélange d'Hydrogène/Oxygène qui est la production de la chambre de réaction est nourri directement dans le carburateur existant ou le système d'injection du combustible.

La procédure de démarrage est au pouvoir en haut l'électronique et attendre la pression du gaz d'atteindre les 30 - 60 gamme de psi. Alors l'ignition automobile est faite marcher comme normale de commencer le moteur. La pédale d'accélérateur est télégraphiée dans l'électronique pour donner plus de pouvoir des plaques de l'électrode le de plus la pédale est appuyée. Cela augmente le taux de production du gaz comme le fait d'étrangler est fait marcher.


Circuit de Contrôle Électronique
Les diagrammes montrent un circuit simple pour contrôler et conduire ce mini-système. Vous allez faire 'un pouls carré' indiquer que vous pouvez regarder sur un oscilloscope. La prémisse donnée par la littérature est : plus vite vous voulez descendent vraiment la route, 'plus gros' vous faites les pouls entrant dans la chambre de réaction. Le cycle de devoir variera avec le fait d'étrangler d'un rapport de Marque/Espace de 10 % (10 % sur et 90 % de) avec la pédale en haut, à un rapport de Marque/Espace de 90 % avec la pédale complètement en bas.


Il y a beaucoup de façons de produire des pouls. Ce circuit utilise un circuit intégré “NE555”. La production échangeant le transistor doit être estimée à 5 Ampères, 12V pour l'opération circulée.


La production du 741 circuit intégré est réglée via sa résistance de variable de 2 Ko, donner une tension de sortie (au point ‘B’ dans le diagramme de circuit) de 1 volt quand la voiture étrangle est complètement en haut et 4 Volts quand le fait d'étrangler a baissé complètement.

Le CD4069 est juste un IC l'entretien de six inverters. Il peut manipuler un voltage de réserves de jusqu'à 18V et est télégraphié ici comme un oscillateur. Ses quatre condensateurs seront probablement utilisés dans juste quatre combinaisons : C1, C C2, C C2 C3 et C1 C2 C3 C4 comme ceux-ci sont les gammes s'accordant le plus largement espacées. Il y a, évidemment, onze autres combinaisons de condensateur qui peuvent être échangées avec cet arrangement de quatre changements.

Noter Importante
Gary de G. L. Le fait de commenter de Chemelec “l'Hydro-étoile” le circuit qui semble pour être fondé sur le même style d'ensemble de circuits, déclare que le circuit et le design sont criblés avec les erreurs sérieuses, dont certaines sont :
  1. L'utilisation des 741 NE TRAVAILLERA PAS! L'épingle 5 est une épingle de Contrôle de Voltage qui a déjà son propre voltage de 2/3 du voltage de Réserves donc il exige à un coup en bas la résistance, pas un IC de le contrôler.
  2. La largeur de Pouls de 2 Ko s'adapte fera voler le 555 compte-minutes si réglé entièrement en bas. Il a besoin d'une résistance supplémentaire pour limiter le courant à ces épingles sur l'IC.
  3. La production des 555, Épinglez 3 est nourri au CD4059 aussi bien qu'un TC4420CPA (le Chauffeur de Mosfet). Ce chauffeur est un gaspillage d'argent comme ce n'est pas nécessaire.
  4. La Production du TC4420CPA est alors nourrie à l'IRF510 Mosfet qui est maintenant obsolète, pourtant vous pouvez utiliser un RFP50N06 (50V, 60A).
  5. Il n'y a aucun schéma du CD4059. Ils devraient avoir montré l'épingle 1 comme dans, épingle 23 comme dehors, épinglent 3, 10, 13, 14 et 24 raccordé à 12 volts et épinglent 2, 4, 5, 6, 7, 8, 9, 11, 12, 15, 16, 17, 18, 19, 20, 21 et 22 raccordé pour fonder.
  6. La "Force Règle" Seulement des Besoins la résistance variable raccordée pour Épingler 5 et la Terre. La Connexion de ce contrôle au Voltage de Réserves Ne fait Absolument aucune Différence dans la Production Waveforms, comme l'IC a seulement besoin d'un voltage 2/3's sur cette Épingle et c'est fourni à l'intérieur, Dans l'IC.
  7. La "Fréquence s'Adapte", Communique aux Épingles 6 et à 7 de Cela 555. Fournissez à la batterie Détruira les 555. donc une autre résistance est nécessaire pour l'empêcher d'arriver.
C'est juste une petite liste de qu'est-ce qui ne va pas. Il y a BEAUCOUP plus et même après que la chose est construite il NE TRAVAILLE PAS! Si vous voulez faire des expériences alors s'il vous plaît faites, mais je suggérerais que vous faites juste votre propre Modulateur de Largeur de Pouls.

Il y a aussi beaucoup de problèmes avec le design de la chambre de réaction et simplement mis, même si vous l'avez vraiment reçu pour travailler vous auriez besoin de plus de ces unités que vous pourriez jamais aller dans votre voiture pour même penser à la course à pied du moteur. Simplement mis, l'unité ne créera pas assez de gaz pour diriger une grande partie de n'importe quoi. Ne moi recevez pas mal, je crois vraiment que l'idée est GRANDE et qu'il peut être fait.

Chambre de réaction:
L'arrangement de chambre de réaction suggéré est :


Il est suggéré que vous utilisez une section de 4" pipe inutilisée de PVC avec un bonnet de vis enfilé allant sur une fin et un bonnet de fin standard à l'autre. Assurez-vous à la foreuse-et-résine-époxy ou tapez des fils par les composantes de PVC pour tous les essayages. Le jeu et le contrôle le niveau d'eau dans la chambre pour que les électrodes de pipe soient bien couvertes et il y a headroom toujours ample quitté pour accumuler la pression de gaz d'hydrogène/oxygène. Utilisez des fils d'acier inoxydable à l'intérieur de la chambre ou utilisez autrement une couche protectrice; utilisez des fils isolés à l'extérieur. Garantissez que les sceaux de résine époxy sont parfaits ou autrement, posent une perle de silicone imperméable suffisante de tenir la pression.

L'essayage de vis peut exiger l'enduit étanché de silicone mou, ou un joint. Son but est de maintenir la pression dans le cylindre et permettre encore l'inspection périodique des électrodes. Assurez-vous qu'il n'y a aucune fuite et vous n'aurez aucun problème. Assurez-vous que vous recevez un trou de 1.5 millimètres symétrique entre les 2 pipes d'acier inoxydable. La littérature référée le suggère plus près à 1 millimètre vous arrivez, mieux. Vérifiez-le le détecteur de niveau d'eau de chambre travaille correctement avant que vous la résine époxy son bonnet dans l'endroit. Faites votre souder des connexions aux jonctions de fil/électrode agréables, lisses et solide; appliquez alors une couche imperméable, par ex. la résine époxy vous utilisez de rejoindre les pipes au bonnet de vis. Cette résine époxy doit être imperméable et être capable de tenir du métal au plastique sous la pression.

Le circuit suggéré pour le contrôle de pompe de niveau d'eau de chambre de réaction est :




Hydrogène de l'Aluminium
Depuis 2003 les Technologies de Rothman du Canada ont dirigé un moteur de 12 chevaux d'essence sur l'hydrogène produit par un processus chimique. C'est un processus bon marché dans lequel le métal est consommé et ainsi, bien que du grand intérêt, ce ne soit pas un moteur 'd'énergie libre'. Une application brevetée récente par Guillaume Brinkley propose un système où les pipes en aluminium sont consommées selon une solution de 25 % d'Hydroxyde de Potassium chauffé à 180 degrés Fahrenheit. Guillaume remarque à la nature non-polluante du système, mais ce n'est pas vraiment ainsi dans cela une très grande quantité d'énergie doit être mise dans la production du métal en aluminium dans la fusion et le raffinant du processus et la pollution est juste déplacée de l'utilisateur final à l'usine industrielle et beaucoup ce qui est plus important, l'oxyde en aluminium produit est extrêmement toxique et les causes une large gamme de maladies sérieuses en incluant Alzheimer. Francis Cornish du Royaume-Uni a un système où l'électrolyse d'eau est combinée avec un processus chimique consommant le fil en aluminium. Le système travaille bien, mais j'ai des réservations de l'utilisation du consommables qui vous attache à la fabrication industrielle, aussi inquiétudes de l'intégrité de systèmes de nourriture mécaniques quand ils sont utilisés par les gens non-techniques (la plupart des chauffeurs automobiles). Il y a aussi l'édition du fait d'enlever et du fait de recycler le résidu chimique produit par le processus.

Je ne gémis pas personnellement sur les processus chimiques et je ne recommande pas que vous construisez n'importe quoi de basé sur la description suivante. Pourtant, il pourrait être possible d'adapter le système Brinkley pour qu'il opère sans parties bougeantes :


Ici, il y a un réservoir d'en-tête contenant une mixture de 25 % d'Hydroxyde de Potassium (KOH) dans l'eau. Ce réservoir est placé plus haut que le réservoir de pression où le gaz hydrogène est produit et la pipe déchargeante est protégée par le fait de désorienter. La pipe déchargeante devrait fournir une issue à l'air à l'extérieur du véhicule ou du bâtiment qui contient le système.

Au départ, la solution KOH dans le réservoir de pression est chauffée par l'élément chauffant, mais quand le processus est commencé, il produit la chaleur pour maintenir la réaction chimique. La génération du gaz accumule alors la pression dans le réservoir de pression fortement construit. La pression levée repousse un peu de solution KOH dans le réservoir d'en-tête, contre la gravité. Cela réduit la région d'aluminium exposé à la solution KOH et réduit le taux de production du gaz. Cela crée efficacement un contrôle de taux de production automatisé du gaz qui n'a aucune partie mouvante.

Si le taux de gaz pris par les augmentations de locomotive, qui baisse la pression dans le réservoir de pression, en permettant plus de solution KOH de heurter le réservoir de pression, en augmentant le taux de production du gaz. Quand le moteur est arrêté complètement, alors la solution KOH est poussée dans le réservoir d'en-tête jusqu'à tous les arrêts de production du gaz, comme montré ici :


Cela regarde comme si le réservoir de pression est sous la pression considérable, mais ce n'est pas ainsi, comme le réservoir d'en-tête est ouvert à la pression atmosphérique. J'ai des inquiétudes du contrôle des processus purement chimiques assez rapidement pour l'utilisation pratique. Le susdit système conviendrait plus à un moteur fixé, comme un générateur électrique, où l'exigence du gaz ne fluctue pas beaucoup. Le réservoir KOH montré ci-dessus devrait être assez grand pour contenir toute la solution KOH dans le cas où la production du gaz ne s'arrête pas juste quand il devrait. La bouche du réservoir d'en-tête devrait être capable d'en décharger de l'hydrogène d'excès sans possibilité ponding sur un plafond et former une mixture explosive avec l'air. Autant que je prends conscience, le susdit système n'a jamais été construit et il est juste montré ici pour les buts de discussion.

Seulement 5 livres par pouce carré de pression sont nécessaires pour les systèmes electrolyser pour nourrir un moteur automobile de manière satisfaisante, donc une pression relativement basse est tout à fait satisfaisante, à condition que le piping ait du diamètre intérieur raisonnable. On devrait s'en souvenir que le moteur automobile appliquera un vide faible par le bubbler. Comme avec tous ces systèmes, il est indispensable qu'au moins un bubbler soit utilisé entre la production du gaz et le moteur, faire attention au flash-back de l'ignition de locomotive si l'ignition défectueuse devrait se produire. Tout bubblers devrait avoir un pan fermement allant - du bonnet qui peut atténuer l'effet d'une explosion et ils devraient contenir seulement une petite quantité de gaz. La méthode pour la connexion au moteur et aux ajustages de choix du moment nécessaires est montré et expliquée dans le Chapitre 10.


Francois Cornish.
La méthode pour utiliser l'aluminium d'un combustible dans un système sur demande hydrogène pour la propulsion de véhicule a été présentée en détail par plusieurs personnes. Un des plus connus est les 4,702,894 Brevetés américains 1987 par Francois Cornique, où il utilise un mécanisme de nourriture du fil en aluminium pour maintenir un arc électrique sous-marin qui lève la température d'eau assez haut pour faire l'aluminium réagir avec l'eau. Le tambour tournant est fait de l'aluminium, mais comme il a une beaucoup plus grande capacité thermale que le fil en aluminium étant nourri vers cela, la température de tambour est beaucoup plus basse que ce du fil. À la suite de cela, le fil atteint la température exigée de faire l'aluminium réagir avec l'eau. La réaction chimique libère de l'hydrogène et convertit le fil en aluminium en poudre en aluminium d'oxyde, qui lègue au fond du réservoir, en traversant une grille juste au-dessus du fond du réservoir.

Les bulles d'air de gaz hydrogène libéré par la réaction ont tendance à rester fidèle au tambour en aluminium tournant, donc une lame d'essuie-glace est fournie pour balayer les bulles d'air du tambour. Les bulles d'air montent alors à la surface de l'eau et sont dirigées dans la chambre de collection du gaz par un entonnoir trouvé au-dessus de l'arc. Si les gouttes de demande de locomotive et la pression dans les augmentations de réservoir de collection du gaz, un détecteur trouvé dans le réservoir font l'électronique de contrôle de nourriture métallique arrêter la nourriture métallique qui coupe la production du gaz.

À première vue, un système comme cela a l'air d'avoir limité l'appel. Il utilise le fil en aluminium qui exige la fabrication par un processus qui utilise des quantités substantielles d'énergie et pendant qu'un véhicule en utilisant de l'hydrogène produit par cette méthode produira très peu de pollution, la pollution se produit au point de fabrication. Aussi, l'artifice utilise une nourriture métallique mécanique et n'importe quel artifice de cette nature aura besoin de la maintenance régulière et peut ne pas être à 100 % sûr. En plus, la poudre en aluminium d'oxyde devra être nettoyée du réservoir produisant sur une base de routine.

Mais, ayant dit tout que, le système a quelques avantages très significatifs. Il n'utilise pas de combustible fossile (directement). Il peut être sans hésiter installé dans un véhicule et la consommation de fil en aluminium est étonnamment basse. Les chiffres cités indiquent que la consommation typique a de l'ordre de 20 litres d'eau, plus un kilogramme d'aluminium utilisé pour couvrir la distance de 600 kilomètres (1 livre par 170 miles). C'est sans doute beaucoup de moins cher que l'utilisation du combustible fossile pour conduire le véhicule. Pourtant, l'oxyde en aluminium produit par ce système est un polluant sérieux comme il est extrêmement toxique, la production d'une large gamme de maladies sérieuses, en incluant Alzheimer. Le système est monté comme cela :


Un autre système d'intérêt est le système d'électrolyse de force de soi des 5,089,107 Brevetés américains 1992 accordés à Francisco Pacheco où les plaques d'anode sacrificatoires de magnésium et d'aluminium sont placées dans seawater en face d'une cathode d'acier inoxydable. La génération électrique est produite et l'hydrogène produit sur demande. Il y a la génération électrique aussi en trop disponible pour diriger une norme electrolyser si si désiré.


Un Système Ultrasonique :
J'ai été dit (par une source assez douteuse) de très le système de haute performance abominable d'eau qui produit assez de gaz hydroxy au pouvoir un moteur de véhicule pendant que seulement le dessin 3 milliwatts à 3 volts qui est 9 purs milliwatts de pouvoir. Je n'ai jamais vu une de ces unités et je n'ai aucune évidence que le système travaille, autre que le mot de bouche, ainsi traitez s'il vous plaît l'entrée suivante comme juste une suggestion plutôt qu'une question de fait dur.

Le système est si intéressant et simple que c'est très attrayant. Fondamentalement, vous avez deux pipes d'acier inoxydable placées dans un bain d'eau de robinet :


L'objectif est de recevoir deux tubes d'acier inoxydable résonnant ensemble à la même fréquence. Ainsi, ils devraient tant produire la même note "musicale" quand suspendu sur un fil et tapé. Comme la chambre à air est le plus petit diamètre, il aura une plus haute note que le plus grand tube de diamètre s'ils sont la même longueur, donc pour eux pour s'accorder, ce serait nécessaire pour la chambre à air d'être plus long, ou le tube extérieur y font couper une fente comme Stan Meyer a fait et qui est discuté dans le Chapitre 10.

Les transducteurs piezo sont sans doute collés aux cylindres, peut-être comme montré ci-dessus et ils sont nourris avec un signal de 2.24 MHz. Les tubes doivent résonner avec le signal d'électronique, donc ils sont écrasés très lentement et soigneusement jusqu'à ce qu'ils résonnent vraiment . Ce sera sans doute à un harmonique beaucoup plus bas du signal d'électronique, un dans la norme ultrasonics la gamme. Sans doute, il y aura trois haut d'entretoises et fond, en maintenant le trou entre les tubes. Si la fréquence a eu baissé dans la région de conduite principale d'environ 50 Hz ou 60Hz, donc l'artifice agirait juste comme un chauffage d'eau du type conçu par Peter Davey. Aux fréquences ultrasoniques, le résultat est tout à fait différent comme cavitation la forme de bulles d'air dans l'eau. Un manuel hautement respecté sur ultrasonics montre que ces bulles d'air de cavitation ont une charge positive sur un côté et une charge négative de l'autre côté et ces charges provoquent l'électrolyse de l'eau entourant les bulles d'air. Beaucoup de bulles d'air - beaucoup de gaz hydroxy produit. Ainsi la théorie de base soutient la possibilité de ce travail d'artifice, pourtant, je ne suis pas conscient de quelqu'un qui a essayé de le copier.

Que l'on ne nous a pas dit est :
  1. La grandeur, la longueur et l'épaisseur de tubes qui travaillent bien.
  2. Le trou entre les tubes.
  3. Les transducteurs spécifiques utilisés dans le prototype.
  4. Quel genre des entretoises ont été utilisées.
  5. Où et comment les transducteurs ont été fixés aux cylindres.
Pourtant, même sans ces informations, cela pourrait être un projet d'enquête intéressant le fait d'avoir recours au pouvoir absolument minimal aux niveaux de voltage banaux.



Le MEG. On a accordé à Tom Bearden, Stephen Patrick, James Hayes, Kenneth Moore et James Kenny les Etats-Unis Font breveter 6,362,718 le 26 mars 2002. Ce brevet est pour un générateur électromagnétique sans parties bougeantes. Cet artifice est dit être actionné de soi et est décrit et illustré sur le site Internet de Naudin JL ici où les résultats d'essai sont montrés. Pendant que l'on a prétendu que cet artifice ait une plus grande production que sa contribution et une production cinq fois plus haut que la contribution a été mentionnée, je ne suis pas conscient de quelqu'un qui a essayé de copier cet artifice et a accompli COP>1 performance et ainsi, pour cette raison, il est décrit dans cette section décrivant des artifices qui ne vaudront pas probablement le coup pour le constructeur de famille pour essayer de copier.

Le "Générateur Électromagnétique Immobile” ou “MEG” s'y compose d'un anneau magnétique avec la blessure de rouleaux de production. À l'intérieur de l'anneau est un aimant permanent pour fournir un flux magnétique régulier autour de l'anneau. Superposé sur l'anneau sont deux électro-aimants qui sont activés successivement pour faire le flux magnétique osciller. Cela ressemble beaucoup à l'artifice “VTA” de Floyd Sweet.


La source de pouvoir externe montrée ci-dessus est destinée pour être débranchée quand le circuit commence à opérer, auquel le temps, la partie de la production d'un des rouleaux de pick-up est nourrie en arrière au pouvoir le circuit en conduisant les rouleaux d'oscillateur. Le circuit devient alors le soutien de soi, sans contribution externe, mais avec une production électrique continue.

Si vous devriez construire un d'entre ceux-ci, être s'il vous plaît avertis qu'il ne devrait pas être créé à moins qu'il n'y ait une charge externe à travers les rouleaux de pick-up, les voltages autrement dangereux, potentiellement mortels peuvent être produits. Ne vous faites pas tuer ou blessé - être s'il vous plaît très prudents.

Un extrait reformulé du brevet pour ce système, est dans l'Appendice et il donne les détails de construction du prototype : les dimensions, le nombre de tours, le matériel utilisé, conduisent la fréquence, les durées de pouls monofermes, etc. Le prototype a produit deux productions de 48 watts pour une contribution de 12 watts. Cela a permis au pouvoir de contribution d'être pris d'une des productions, pendant que que même production branchait d'autres charges.

Cet artifice est essentiellement, un transformateur construit d'habitude avec deux windings primaires (les rouleaux d'oscillateur) et deux windings secondaires (les rouleaux de pick-up), avec un aimant permanent inséré pour créer un champ magnétique effectif par le joug (la charpente) du transformateur. Pourtant, un aimant permanent a deux ruisseaux d'énergie séparés en venant. Le champ principal est le champ magnétique qui est très bien connu. Il coule normalement dehors dans chaque direction, mais dans MEG, un très bon sentier de conduction est fourni par la charpente de l'artifice. Cela piège l'écoulement d'énergie magnétique et le canalise autour de l'intérieur la charpente. Cela le prévient masquant le deuxième champ d'énergie qui est le champ d'énergie Électrique. Avec le champ magnétique déplacé de la voie, il est maintenant possible de taper ce champ d'énergie pour la puissance à la sortie supplémentaire.

Le MEG ressemble à un artifice très simple, mais dans le fait réel, ce n'est pas. Pour agir comme un artifice réussi avec un Coefficient de Performance (COP) plus de 1, où le pouvoir de contribution qui est fourni est moins que la puissance à la sortie utile de l'artifice, alors Tom dit que la charpente doit être faite d'une matière nanocrystalline. Cette matière a des propriétés spéciales qui donnent à MEG c'est la production exceptionnelle.

Le soin doit être pris avec cet artifice comme la puissance de sortie peut être si haute qu'il peut brûler l'isolation des fils et détruire l'artifice si la puissance de sortie n'est pas contrôlée soigneusement. La puissance de sortie est normalement limitée à COP de 5.4 pour les raisons pratiques. Si le pouvoir de contribution nécessaire est pris de la puissance de sortie via un circuit de contrôle rigoureux qui prévient le fugueur, donc l'artifice peut fournir la puissance de sortie pendant qu'aucun pouvoir de contribution extérieur n'est nécessaire.

La puissance de sortie est contrôlée par le waveform étant envoyé aux rouleaux d'oscillateur. Le pouvoir est contrôlé par la forme exacte du "signe carré” le trajet :


Ce waveform est réglé soigneusement pour limiter le COP à 5.4 pour le saké de sécurité. Le waveform est aussi ajustable pour le rapport de Marque/Espace et la fréquence.

Comme c'est quelques années depuis que cet artifice a été fait breveter, on peut poser la question quant à pourquoi il n'est pas dans la production et offert pour la vente partout. La raison est que MEG est un prototype de laboratoire qui a besoin de l'ajustage prudent et du fait de tordre. Il a été copié par d'autres et c'est la performance vérifiée comme étant COP> 1, mais ce n'est pas encore prêt pour la production où il est nécessaire de faire améliorer le design au stade qu'il peut être rassemblé à une usine et à un travail tout de suite sans le besoin pour les ajustages manuels. Ce développement est dans la main et peut être accompli dans l'année prochaine ou deux.

Une explication de plus est pour. MEG a une efficacité générale, bien au-dessous de 100 % malgré le fait d'avoir un Coefficient de Performance bien plus 1. COP de 5.4 a mentionné plus tôt est une figure arbitraire choisie par les créateurs pour prévenir l'isolation étant brûlée des fils de production. La production maximum réelle est presque illimitée, bien sûr un COP de 100 est tout à fait possible, mais tout à fait inutile dans les termes pratiques.

Si un joug en fer stratifié standard est utilisé pour MEG, il n'aura jamais de > 1 comme le pouvoir de contribution sera nécessaire pour le faire opérer. Le flux magnétique d'un aimant permanent se compose de deux composantes. Une composante est le rond-point et il se disperse dans chaque direction. La deuxième composante est linéaire et il est inondé et caché par le champ rotatif. Si une blessure de joug torroidal avec une contribution serpentant sur sa longueur entière est utilisée, donc cela piège tout le champ magnétique tournant à l'intérieur du torroid. L'obstacle est que cela exige le pouvoir de contribution considérable de stimuler la sinuosité de torroidal. La grande avance avec MEG est que les inventeurs ont découvert un matériel nanocrystalline disponible standard qui a la propriété de piéger le champ magnétique rotationnel à l'intérieur d'un torroid formé avec eux, sans le besoin pour n'importe quel rouleau stimulant. C'est une augmentation importante au fonctionnement de l'artifice.

Maintenant, avec le champ magnétique rotationnel piégé à l'intérieur du torroid, le champ de paquebot devient accessible et c'est un champ très utile effectivement. C'est électrique dans la nature. Dans le fait réel, le magnétisme et l'électricité ne sont pas deux choses séparées, mais au lieu de cela ils sont de différents aspects de la même chose, donc tous les deux devraient vraiment être "l'électromagnétisme" appelé. En tout cas, le champ linéaire est facile à l'approche dès que le champ rotationnel a été enlevé. Tout ce qui est nécessaire doit circuler cela brusquement. Quand c'est fait, l'électricité réelle est introduite dans MEG de l'environnement environnant. Plus pointu le waveform, plus grand la contribution électrique supplémentaire devient. C'est ce qui fait MEG avoir un COP de disent, 5.4 qui est une production travaillant pratique. Si la production est alors manipulée pour fournir le pouvoir de contribution nécessaire au fait de circuler, le COP devient efficacement infini comme vous ne devez pas fournir de pouvoir de le faire travailler et vous avez une puissance à la sortie substantielle. La puissance à la sortie divisée par la puissance consommée que vous devez fournir pour faire l'artifice opérer, donne l'estimation de COP, donc n'importe quelle production divisée par la contribution zéro, donne toujours l'infinité.

Dave Lawton a fait des expériences avec l'arrangement de MEG, en utilisant un joug en fer stratifié personnalisé professionnellement construit. Il a constaté qu'en utilisant l'arrangement standard, il n'a trouvé aucune différence quand il a enlevé l'aimant permanent. En évaluant des configurations différentes, il a constaté que l'organisation la plus efficace pour ses composantes est :



Ici, les rouleaux de trajet sont tant mis asymétriquement sur un côté de la charpente et télégraphiés pour que leur complément de pouls l'un l'autre. Alors deux paires d'aimants de bouton sont placées de l'autre côté du centreline, chaque côté du joug et construites un pont ensemble avec deux sections verticales de suite de bar en fer stratifié. Cet arrangement est sensible à la position exacte de ces aimants et le fait d'accorder est accompli en déplaçant le groupe de quatre aimants et de deux bars (efficacement deux aimants "de fer à cheval") légèrement quitté ou droit de trouver la position optimale. La présentation ou le fait d'enlever ces aimants ont alors fait une différence considérable pour l'opération de l'artifice.

Pendant que la plupart des personnes trouvent très difficile de recevoir C.O.P.> 1 opération de MEG, il y a, sur le web, exceptionnellement bien - la présentation écrite par la fourgonnette Jacco der Worp entitled “le Guide de l'Auto-stoppeur de la 'Énergie Libre’ MEG” ici et il explique comment et pourquoi il peut travailler. Selon la permission gentille, il est reproduit ici:

Le Guide d'un Auto-stoppeur de la "Énergie Libre" MEG

YOWUSA.COM, 25-Juin-2002 Jacco van der Worp

Avant-propos par Marshall Masters

Cet article par la fourgonnette Jacco der Worp un physicien néerlandais, explique la "énergie libre" le Générateur d'Énergie Magnétique MEG simplement, dans les termes de profane. J'ai travaillé de près avec Jacco sur ce projet et ai envoyé une demande polie à Lee Kenny, un des chefs de MEG pour l'assistance. Sa réponse rapide contrôlait et a pué de la paranoïa. "Vous n'êtes pas AUTORISÉS par MEL à publier n'importe quelles informations quant à MEG." (Les lecteurs peuvent voir et commenter le texte entier via le poste de babillard électronique YOWUSA, MEG - les Maîtres et Kenny.) Au début, sa réponse paranoïde m'a déconcerté, mais comme nous avons davantage enquêté sur MEG nous sommes venus pour comprendre la paranoïa et il a refroidi notre sang. Peut-être on devrait quitter ce génie particulier dans la bouteille.

Ma première réaction à la conduite de contrôle répressive de Kenny était de tirer en arrière une réponse lui rappelant qu'il y a un petit morceau bizarre de papier appelé la Constitution. Après cela, la paranoïa urgente en réponse de Kenny a continué à la tâche moi. Une explication évidente et simpliste est que Bearden. sont occupés en souscrivant au Magazine du Yachting et en montant des comptes bancaires dans les refuges fiscaux au large pour leur inconnue pour être la richesse. Le problème est c'est une explication trop simpliste, parce qu'après le fait de travailler avec les ingénieurs depuis vingt-cinq ans j'ai appris à reconnaître une réaction de paranoïaque de réflexe rotulien quand je vois celui. La réponse de Kenny était par excellence une réaction de paranoïaque de réflexe rotulien. Peut-être, j'aurais atteint cette conclusion dès le début, étaient je pas si étant amoureux d'avec la technologie de MEG. Mais comme creusé plus profond, j'ai trouvé plus de raisons tangibles de la paranoïa de Kenny.

Le processus d'invention est un passionné. À la fin du processus sont les récompenses financières pleines d'espoir, mais pour quelque chose aussi complexe que MEG là est une tout aussi grande récompense - la reconnaissance de pair. "Damnez vos yeux, mais vous l'avez fait." Dans cette chaleur d'invention les dimensions de réalité post sont discutées, mais à un niveau plus bas et avec moins d'accentuation. Je crois que c'est ce qui peut être arrivé aux inventeurs de MEG. Ils sont simplement devenus si emportés avec la passion d'invention qu'il a assombri leur vue au-delà du moment ils recevraient leur brevet, qui étreindrait à son tour leur paradigme déplaçant des théories avec la plausibilité.

Pourtant, dès que le brevet a été publié, les types d'articles que l'on s'attendrait voir dans les magazines comme la Science Populaire et la Mécanique Populaire a manqué de se concrétiser. De plus, ce qui a été rendu disponible par Bearden. était un tel geeky technobabble qu'il navigue d'habitude sur la tête de l'homme moyen. Je crois maintenant qu'il y avait une raison de cela. MEG ouvre un porche dans un nouvel avenir, rempli de nouvelles applications qui construiront sur les concepts fondamentaux de MEG. Comme le génie nucléaire l'Amérique a lâché sur le Japon, le génie de MEG offre nous tous les deux un nouvel et meilleur monde aussi bien qu'un monde mort tous dans la même haleine. Je crois que cela explique la paranoïa de Kenny. Maintenant que lui et ses partenaires de MEG/MEL pareils regardent les applications pratiques de leur invention ils commencent à le voir "d'à l'extérieur de la boîte" comme ils disent dans les affaires informatiques. Ainsi que pourraient-ils voir que les fait vouloir contrôler l'écoulement de connaissance de cette nouvelle invention ?

Pendant que le foyer est maintenant sur la "énergie libre" l'application de technologie de MEG, sa capacité de réagir réciproquement et déformer le continuum de temps spatial offre une nouvelle gamme alarmante d'applications pour inclure : l'Arme de destruction de masse, le trajet spatial interstellaire et le moteur de machine de temps. Et c'est seulement le début des possibilités hypothétiques qui pourraient émerger de ce paradigme déplaçant l'invention. Pourtant, avant que nous ce génie sommes laissés de la bouteille, nos représentants élus et nous tous dans le besoin principal de comprendre MEG un peu mieux. C'est le but de cet article superbe par la fourgonnette Jacco der Worp.

YOWUSA.COM Marshall Masters, Éditeur


Le Guide d'un Auto-stoppeur de la "Énergie Libre" MEG
Ce quatrième article dans une série YOWUSA sur le Générateur Électromagnétique Immobile par Tom Bearden et d'autres., maintenant sous le brevet, discute cette technologie groundbreaking dans les termes de profane non-technique par opposition au fait de creuser profondément dans les principes physiques derrière MEG. Dès que vous avez fini de lire l'article, vous aurez une idée générale de comment MEG travaille et pourquoi ses inventeurs l'appellent une "énergie libre" la machine. Pour ceux avec les intérêts plus audacieux pour les formules précises et les équations décrivant MEG, ceux-là continuant à travailler le projet ont déjà publié plusieurs articles techniques sur Internet. Le meilleur d'entre ceux-ci est un dossier de PDF de 69 pages appelé Le Générateur Électromagnétique Immobile : le fait d'Extraire l'Énergie d'un Aimant Permanent avec l'Énergie Reconstituante du Vide Actif. Ce document dispose les principes les plus fondamentaux utilisés pour MEG avec un peu de visualisation graphique ajoutée.


Le fait de faire connaissance avec MEG" MEG
MEG représente une approche révolutionnaire au fait de produire l'énergie dans notre jamais plus d'économie exigeante. Pourtant, cela peut aussi devenir une énorme menace financière à de grandes compagnies d'énergie, comme les Maîtres de Marchall exposés dans son article: Bearden's Free Energy MEG Destined For Chapter Eleven.

Pourtant, si MEG devient son rôle destiné, il conquerra le marché. Il fera ainsi en fournissant à l'humanité un durable et nettoiera avant tout la source d'énergie, que pour l'instant nulle autre source d'énergie n'a accomplie à un prix abordable.

Pour la personne commune, MEG est une merveille technique obtuse et comprenant pourquoi il travaille exige à un de plonger la tête la première dans ce qui semble être une piscine insondable de technobabble. Pourtant, si nous réduisons l'édition à cinq termes technologiques fondamentaux, nous pouvons créer une compréhension fondamentale de MEG.

Dans un artifice de MEG il y a cinq termes fondamentaux en jouant un rôle important dans la réalisation de cela travailler. Ils sont (l'énergie) le flux, l'efficacité, la capacité, le champ magnétique et le fait de protéger. Cet article essaiera d'expliquer chaque terme de MEG simplement, en utilisant des exemples quotidiens. Après l'explication fondamentale, nous explorerons une analogie complète dans la forme d'une barrique de pluie.

Flux
Le flux, ou le flux d'énergie pour être plus précis, sont essentiellement un dérivé de création d'énergie. Par exemple, un moteur d'auto utilise une mixture d'essence et d'air au pouvoir la voiture. Les moteurs plus vieux n'étaient pas en particulier extrêmement efficaces dans l'incendie de tout cela la mixture et le dérivé sont le smog qui part le tuyau d'échappement de la voiture.

Les moteurs automobiles modernes sont plus économiques; l'essence moins non brûlée quitte leurs tuyaux d'échappement. Pourtant, même les voitures les plus efficaces sur la route poussent aujourd'hui toujours de l'essence non brûlée du tuyau d'échappement. Par-dessus le marché la partie de la chaleur produite par l'incendie de l'essence à l'intérieur du moteur laisse aussi cette voie. Dans une manière du fait de parler, le smog qui vient de la soupape d'échappement de votre voiture ressemble au flux. C'est un dérivé du processus de créer l'énergie devait faire votre voyage automobile en bas la route.

Flux et Efficacité
Avant l'embargo de pétrole de 1973, les créateurs automobiles américains ont grandement ignoré l'édition de flux en construisant des voitures avec de plus grands moteurs pour aller plus vite. Par conséquent, cette économie du combustible a souffert de l'embargo. Pourtant, en 1973 le prix de combustible ne l'a pas fait une édition importante. Dès que le prix du combustible est monté après 1973, les fabricants américains d'auto ont commencé à perdre des ventes aux fabricants étrangers qui construisaient des moteurs plus efficaces-du-combustible.

Efficacité
Nous définissons l'efficacité comme l'application utile d'écoulement d'énergie. Cela signifie que si nous construisons un moteur plus efficace-du-combustible, il enverra le combustible moins non brûlé du tuyau d'échappement et augmentera ainsi le nombre de miles nous pouvons continuer la même quantité d'essence.

La partie que nous appelons utile voici l'énergie de l'essence brûlée dont la chaleur est utilisée pour déplacer notre voiture. Que nous avons visé puisque cette partie divisée par l'énergie totale qui pourrait être produite de la quantité de gaz que nous avons utilisé, est appelé l'efficacité.

Efficacité et Unité
Depuis 1973, le but de fabricants d'auto est d'utiliser l'énergie disponible dans l'essence autant que possible. Le plus ils peuvent attendre est ce que l'on appelle l'unité. L'unité signifie qu'un système peut y utiliser 100 % de la contribution d'énergie. Dans ce cas-là, ce serait l'énergie conservée dans l'essence pour produire la production désirée, la production est dans ce cas-là le cheval-vapeur que notre moteur livre pour déplacer notre voiture en bas la route.

Peu importe comment efficace les designs sont dans le fait de pousser vers l'unité, le système le plus peut espérer accomplir avec de présentes technologies est l'efficacité d'environ 30 %, qui est environ 70 % sauf de l'unité.

Unité et Systèmes Fermés
Quand nous pensons communément à l'unité (l'efficacité de 100 %), nous avons aussi tendance à penser du point de vue des systèmes fermés. Un système fermé est un système qui est complètement isolé du reste du monde. Dans une manière du fait de parler, un moteur d'auto est un système fermé. L'énergie libérée de l'incendie de l'essence pour extraire son énergie est ou capturée au pouvoir la voiture ou soufflée le tuyau d'échappement comme le flux gaspillé. Également, vous réduisez constamment la quantité d'essence dans votre réservoir comme vous conduisez en bas la route. La somme totale d'énergie qui est ou toujours conservée dans l'essence non brûlée ou déplace votre voiture le long ou quitte le tuyau d'échappement comme le flux inutilisé est constant.

Le point essentiel pour tenir dans la tête d'un système fermé est qu'il ne tire pas d'énergie de l'environnement autour de cela. D'autre part, un système ouvert tire vraiment l'énergie de ses environs.

Systèmes Fermés et Systèmes Ouverts
Si nous devions créer des automobiles avec les systèmes ouverts, auxquels ressembleraient-ils ? Ils auraient le même moteur, mais une automobile avec un système ouvert aurait par exemple un mât et une voile.

Dans ce cas-là, le chauffeur utiliserait le moteur d'auto pour lever et baisser la voile. La voile levée accomplit un système ouvert en capturant l'énergie de mouvement du vent et en l'utilisant pour propulser la voiture en bas la route (pourvu que le vent soit avec vous.)

Dès que vous avez levé la voile, vous pouvez faire la voiture avancer en orientant la voile au vent. Vous ralentir peut placer la voile conformément à la direction du vent le neutralisant ainsi comme un système de pouvoir actif, ouvert. Dès que vous levez la voile, vous n'avez pas besoin du moteur de la voiture pour la propulsion. Le point essentiel pour tenir dans la tête d'un système ouvert est qu'il tire l'énergie de l'environnement autour de cela comme la voile sur notre voiture modifiée. En plus, c'est contrôlable dans cela vous pouvez l'allumer et de, comme un système fermé.

Systèmes Ouverts et le Coefficient de Performance (“COP”)
Parce que la voile d'auto n'est pas limitée à l'énergie du combustible dans le réservoir du gaz (qui ne peut jamais excéder l'unité ou l'efficacité de 100 %), un système ouvert (décrit ici par la voile d'auto) peut en fait excéder l'unité. Autrement dit, il peut obtenir l'efficacité de plus de 100 % du système d'énergie avec lequel il communique, qui est dans ce cas-là le vent. Donc comment mesurons-nous des systèmes que peut accomplir plus que l'unité ?

Le Coefficient de terme de Performance (COP) compare la quantité de contribution d'énergie dans un système contre la quantité utilisable de production d'énergie par le même système. Par exemple, en utilisant le moteur dans notre voiture pour lever la voile exige une unité d'énergie et que quand la voile est levée il produit ou cueille 8 unités d'énergie de mouvement de vent, le Coefficient de Performance est 800 %. Une autre façon de l'exprimer est 8:1, où 8 est l'énergie utile disponible et 1 est la quantité d'énergie insérée dans le système pour déclencher la génération d'énergie utilisable.

Le Coefficient de Performance et de Capacité
Dans notre exemple automobile nous avons utilisé une voile pour propulser notre voiture pour accomplir un 8:1 C.O.P. Pourrait-il travailler avec de plus grands systèmes ? Par exemple, pourrait-il travailler avec les camions aussi ? Nous savons déjà que les voiles ont été utilisées pour propulser il y a les siècles de voiliers énormes de bois.

Retournons à temps aux voiliers un moment. Les entrepreneurs de ces grands navires savaient que plus et les plus grandes voiles ils ont ajouté à leurs navires, plus vite ils iraient. Pourtant, de grandes étendues d'eau entourent ce navire sur l'océan. Avec cela en tête, voyons comment cela s'applique au fait d'avoir recours au pouvoir de voile pour propulser des voitures et des camions.

Parce que les voitures et le voyage de camions dans la proche proximité l'un à l'autre et dans la même direction sur une route nationale, la quantité d'énergie de vent disponible dans le système ouvert doit être divisée parmi les véhicules différents. Par conséquent, ceux-là dans la proximité la plus proche à la direction de vent saigneront du pouvoir de vent de ceux en avance d'eux. Essentiellement, ils volent littéralement chaque vent d'autre.

Du point de vue de la capacité, le concept essentiel ici est que les systèmes ouverts peuvent ne pas être des systèmes illimités. En cas de notre voiture et voiles de camion, la proximité et le nombre de voiles accédant au même système de vent ouvert pour l'énergie égoutteront le système ouvert. Autrement dit, même si un système ouvert est libre, la capacité nous dit qu'il y a seulement une si grande partie de cela pour se promener.

À ce point, nous avons discuté quelques termes généraux utilisés avec MEG. Maintenant nous sommes prêts à discuter des termes qui sont plus spécifiques à MEG, en commençant par les champs.

Champs
Dans les termes très simples, un champ est n'importe quel mécanisme qui sert d'un moyen à une fin. Dans l'exemple automobile, nous avons utilisé une voile comme notre champ, dans lequel il a cueilli l'énergie du système de vent ouvert.

À la différence des voiles nous utilisons comme les champs pour capturer l'énergie nous devons propulser nos voitures, du point de vue de MEG, nous devons utiliser quelque chose a appelé un champ magnétique.

Champs magnétiques
En cas de la voile d'auto, nous avons utilisé notre voile comme un champ pour tirer l'énergie du système de vent ouvert autour de nous pour que nous puissions propulser des voitures. L'énergie dont nous avons eu besoin a été conservée à l'intérieur du vent.

Avec MEG, la source d'énergie que nous devons taper n'est pas le vent, mais les forces électromagnétiques de l'univers qui sont aussi douées d'ubiquité comme le vent est sur la Terre, si pas plus ainsi.

Que la voile et MEG ont en commun concernant les champs est qu'ils doivent contrôler leurs champs pour prévenir des effets indésirables indésirables.

En regardant notre exemple de voile d'auto, nous attachons des lignes à la voile et au grondement pour contrôler la soignée de la voile pour qu'il capture si beaucoup d'énergie que possible sans surinsister sur la voile et provoquer le dommage. Dorénavant le terme naviguant populaire, la passementerie les voiles. Également, les voiles non coupées peuvent être dangereuses, en présentant un hasard aux systèmes comme le grondement et le mât, ou au marin si le vent déplace la voile et le grondement violemment à travers le navire, en bouleversant la balance du navire.

Dans une manière du fait de parler, MEG utilise quelque chose appelée le fait de protéger pour accomplir la même chose que le contrôle de la passementerie de la voile si vous irez faire. Sans cela, les effets violents peuvent nuire à ses environs.

Champs magnétiques et le fait de Protéger Magnétique
Avec MEG, les champs magnétiques sont très puissants et doivent être contrôlés fermement à tous moments pour les empêcher de créer des dégâts dans l'espace autour d'eux. C'est pourquoi MEG doit utiliser le fait de protéger magnétique.

Le concept le plus important du fait de protéger magnétique est qu'il sert d'un contrôle de sécurité pour les champs magnétiques en contenant et en minimisant leurs effets négatifs.

L'Exemple de Barrique de Pluie
À ce point, nous avons couvert toutes les bases à l'exception du potentiel vectoriel magnétique, qui forme le point crucial de la théorie de MEG. Pour vous aider à comprendre la complexité de ce concept, reconsidérons d'abord que nous avons recouvert ce point dans le contexte d'un système de barrique de pluie simple. La raison de cela est que l'on peut comprendre MEG le potentiel vectoriel magnétique plus facilement d'un point de vue systémique.

Flux
Certains d'entre nous peuvent avoir essayé le suivant comme les gamins ou encore plus tard dans la vie. Si nous prenons une barrique remplie de l'eau (ou un réservoir du gaz rempli de l'essence) et nous voulons sortir un peu de qui, nous ne devons pas sucer tout cela de nous. Nous prenons un morceau de tuyau; le tuyau d'arrosage simple fera et le collera dans le réservoir dont nous voulons prendre le liquide. Sur l'extérieur, nous baissons une fin du tuyau un peu plus bas que la fin opposée en nous assoyant à l'intérieur du réservoir. Alors nous suçons doucement sur le tuyau (nous conservons à l'eau à partir d'ici si seulement pour le goût) et le liquide commencera à couler. Dès qu'il fait, il continuera à couler jusqu'à ce que l'autre fin du tuyau à l'intérieur du réservoir ne soit plus submergée. Donc, avec seulement un peu d'effort nous enlevons beaucoup de liquide.

On appelle le mécanisme qui fait ce travail l'effet capillaire. Autrement dit, le poids de la colonne de liquide dans le tuyau avec une hauteur égale à la différence dans la hauteur des deux fins du tuyau fournit la force qui est nécessaire pour garder le mouvement liquide. Pourtant, que nous savons vraiment est que la barrique d'eau courra vide si nous versons juste tout cela.

D'autre part, MEG tire l'énergie 'd'une barrique' qui se remplit le droit fait marche arrière! Donc il ne court jamais vide! Si vous répétez l'écoulement d'énergie stimulé de MEG, le flux d'énergie en viendra constamment; il ne courra pas sec comme notre barrique de pluie.

Donc, une façon nécessaire de décrire MEG donc du point de vue de cet exemple serait une barrique de pluie dans laquelle plus de pluie tomberait l'instant que que l'on en tire de l'eau. Dès que vous commencez de l'eau coulant par le tuyau, la pluie commence à tomber dans la barrique et remplace de l'eau que vous retirez à un pas semblable.

Pour cette raison, une barrique d'eau de MEG-style ne courra jamais vide et l'eau coulera pour toujours dehors par le tuyau dès que vous l'avez apporté dans le mouvement parce que MEG est un système ouvert, qui nous apporte au point suivant de considération, que l'efficacité contre le Flic signifie pour notre barrique de pluie.

L'efficacité et le Coefficient de Performance
Pour le but de notre exemple de barrique de pluie, le terme "l'efficacité" peut être défini par la quantité d'eau que nous pouvons tirer de la barrique en le tirant dans le mouvement avec le tuyau de siphon. Avec la barrique d'eau de système fermée, nous avons appris qu'un système fermé est isolé du reste du monde, donc aucune pluie ne vient en s'effondrant d'en haut pour remplacer que nous sortons. Dans ce cas-là le meilleur que nous pouvons faire est la position le tuyau au même fond de la barrique sur l'intérieur et en y permettant de donner encore plus bas sur l'extérieur. En le faisant, nous pouvons siphonner toute l'eau de la barrique, qui nous donne le maximum de 100 % de l'eau. On l'appelle 100 % d'efficacité "l'unité".

En gardant l'unité de notre système de barrique de pluie fermé en tête, nous déplaçons en arrière à notre variante de système ouverte.

Le moment nous commençons à siphonner de l'eau de la barrique de pluie de système ouverte, l'eau de pluie fraîche s'effondre par le haut ouvert de la barrique. Peu importe combien d'eau nous siphonnons de notre barrique d'eau de système ouverte, assez de nouvelle pluie échoue le haut pour remplacer que nous accompagnons.

Donc, installé le mouvement un ruisseau éternel d'eau avec notre barrique de pluie de système ouverte nous pouvons obtenir des résultats plus grands que cette d'unité. C'est que le Coefficient de Performance (le FLIC) est de. Nous l'utilisons pour exprimer le résultat de production, qui est plus grand cela que nous installons. Ergo, le FLIC pour la barrique de pluie de système ouverte peut excéder l'unité (l'efficacité de 100 %) alors que la barrique de pluie de système proche peut seulement espérer accomplir l'unité. Si alors, ce qui arrive si nous augmentons la grandeur de notre barrique de pluie ?

Capacité
À part de l'effet direct du fait d'avoir plus d'eau en augmentant la grandeur de notre barrique d'eau et tuyau de siphon, À part de l'effet direct du fait d'avoir plus d'eau en augmentant la grandeur de notre barrique d'eau et tuyau de siphon, il y a des effets indirects aussi et ils doivent être soigneusement considérés. Pour les démarreurs, si nous rendons notre barrique plus grande aussi bien que notre tuyau de siphon que signifiera-t-il pour nous ? Étant donné que nous utiliserons un plus grand tuyau pour siphonner de plus de liquide, nous aurons besoin d'une plus forte force de succion pour commencer. Nous pouvons le faire simplement (pourvu que nous ayons le pouvoir de poumon) sans exiger le fait d'en haut escalader du système entier.

Pourtant, si nous égouttons plus d'eau par seconde d'une plus grande barrique (par ex. la grandeur d'un lac) et nous voulons que cela continue à courir, il devra pleuvoir plus dur pour reconstituer de l'eau que nous sortons et la chute de pluie est attachée à une limite naturelle.

À une certaine barrique et à une grandeur de tuyau, pas même une tempête tropicale fournira assez de pluie pour continuer le niveau d'eau et le système commencera à s'effondrer. Par-dessus le marché une barrique normale est sur une structure de soutien. Plus grand la barrique, plus dur il devra constater qu'un endroit pour cela est et reste être debout. Autrement il pourrait tomber par terre ou la pause. Ainsi comment empêchons-nous notre plus grande barrique de se rompre ?

Champs
Si la barrique devient vraiment grande (supposons un moment que c'est la grandeur de Lac Supérieur) et nous commençons à en siphonner de l'eau au pas de quatre fois le flux total d'eau de Sault Ste Marie Canals, donc le niveau d'eau prendra le temps pour se réadapter pour l'eau versée. Le champ le plus important dans l'action ici est le processus siphonnant, actionné par la gravité, qui s'ensuit dans l'écoulement d'eau de notre plus grand lac de barrique. (Oui les gens, maintenant nous parlons à une échelle planétaire.)

Normalement, le niveau d'eau est horizontal (permettant évidemment pour la courbure de Terre sur une plus grande échelle). Pourtant, si le pas du fait de siphonner devient assez haut, l'écoulement normal d'eau deviendra incapable de corriger le niveau assez vite.

Une différence permanente dans la hauteur du niveau d'eau d'un côté du lac à l'autre surviendra. Dans ce cas arrêtant l'action siphonnante ne s'ensuivra pas à un arrêt immédiat dans l'eau coulant vers le point siphonnant. Un arrêt soudain dans le versement d'une barrique de grandeur de lac provoquera au moins un petit raz-de-marée. Plus grand la différence de niveau à travers le lac, plus mauvais le raz-de-marée se terminera. Bien que cela ressemble à un autre champ dans l'action dans le grand système de barrique, ce n'est pas. C'est un mécanisme corrigeant de soi pour la surface de lac après qu'il a été dérangé.

Dans les termes simplistes, auxquels cela se réalise tout est que l'énergie d'écoulement comme l'eau d'écoulement par notre système de barrique d'eau représente un champ. Comme un champ augmente dans la grandeur qu'il peut également déstabiliser en plus grandes quantités aussi. Donc, si nous voulons augmenter la grandeur de nos champs nous devons trouver des façons de les protéger de ces choses, qui pourraient les déstabiliser.

Champs et le fait de protéger
Si notre barrique de pluie de-grandeur-normale a trop rempli avec l'eau il pourrait commencer à fuir. Dans un tel cas, nous aurions besoin des mesures pour prévenir un écoulement exalté d'eau de pluie de nuire aux environs immédiats dans une inondation.

D'autre part, avec notre version de grandeur de lac de barrique d'eau nous aurions besoin des fossés pour entourer notre lac pour l'empêcher de déborder sur le terrain autour de cela.

Cette inondation trouve sa cause dans une différence de pas entre le pleuvant dans et coulant de l'eau. Ces fossés doivent évidemment être en mesure de résister à de petits raz-de-marée qui émergent en raison du commencement et de l'arrêt de l'action siphonnante. Dans les termes très simples, on l'appelle en protégeant.

Jusqu'à ce point, nous avons couvert les concepts les plus essentiels dont nous aurons besoin avant que nous nous attaquons au grand - le potentiel vectoriel. C'est un important le concept encore complexe mais il va à très entendu de que MEG est pourquoi il peut faire qu'il fait.

Composantes de MEG et disposition
La peinture ci-dessous, pris du résumé par l'Énergie Magnétique Limitée comme il a publié sur Internet. (Nous avons ajouté placeholders coloré pour rendre plus facile de voir.) Cette illustration montre la disposition fondamentale d'un prototype de laboratoire de MEG utilisée pour avec succès démontrer la théorie.

  • AIMANT PERMANENT (A) : l'élément le plus important est l'aimant permanent s'assoyant au milieu de la peinture schématique. Les lignes de champ magnétique viennent de cet aimant droit en haut et de côté de fond (dans cette peinture). Cet aimant est ce qui aide à conduire la machine entière.

  • LE SENTIER DE FLUX NANO-CRISTALLIN ET LA MATIÈRE DE BASE (B) : Au lieu de librement 'tourner en rond' du Pôle Nord de l'aimant au Pôle Sud ils entrent dans un 'sentier de flux nano-cristallin et évident la matière.' Cette matière capture tout le champ magnétique de l'aimant permanent, pour qu'aucun champ magnétique ne soit présent libre dans l'air plus.

  • BOBINE DE COLLECTIONNEUR (C) : les bobines de collectionneur sont les points où l'énergie peut être tapée de MEG.

  • L'ACTUATEUR (LA CONTRIBUTION) LE BOBINE (D) : les actuateurs sont les points de contribution d'énergie de mettre la beaucoup plus grande quantité dans le mouvement.
Pour le comparer à la barrique de pluie, les actuateurs sont votre bouche tirant de l'eau par le tuyau. Les collectionneurs sont les fins de tuyau en s'accrochant de la barrique qui commence à couler dès que vous avez produit un capillaire avec votre tuyau de siphon. Et finalement, l'aimant et le bobine contenant le champ magnétique sont le réservoir de barrique contenant l'eau.

Comment le MEG travaille
Maintenant nous venons au point crucial du système entier, la raison pourquoi il travaille en premier lieu. La poussée dans notre barrique de pluie grande, de grandeur de lac était la force de gravité. Cela a fait de l'eau qui tombe à une distance loin de notre mouvement de tuyau vers le point de siphon initial et à son tour provoqué l'eau pour parcourir le siphon. Dans ce cas-là, la gravité est la force de restitution du niveau d'eau de notre barrique de pluie de grandeur de lac comme il fait le niveau d'eau aller horizontal de nouveau.

Cette force et le mécanisme de correction attaché à cela ont un équivalent dans l'arène magnétique. Cette force est le potentiel vectoriel magnétique. Si nous regardons MEG, nous voyons qu'il convertit un flux d'énergie qui a été conservé dans un potentiel si vectoriel à l'extérieur d'un sentier de champ magnétique fermé. (Ho, n'était pas qu'une bouchée. Le décomposons en plus de termes plus simples.)

Bien, Ainsi qu'un Vecteur est Potentiel En tout cas ?
Pour expliquer le potentiel vectoriel, nous devons utiliser quelque chose d'autre qu'une barrique de pluie, mais il doit être familier pourquoi pas l'énergie nous utilisons dans nos maisons pour diriger nos ordinateurs, sèche-cheveux, etc.

Nous tous sommes au courant du potentiel électrique à travers les deux fils d'une issue murale. Ce potentiel électrique est ce qui fait une ampoule brûler. Si nous ne sommes pas prudents avec l'issue nous pourrions aussi nous trouver l'appartement sur notre revers comme nos membres de famille demandent frénétiquement une ambulance. Avec gratitude bien que, les Etats-Unis, le potentiel électrique soit 110 volts, qui a été choisi parce que ce n'est pas aussi mortel que la norme de 220-240 volts trouvée dans la plupart des autres pays dans le monde.

Pourtant, si nous combinons la valeur numérique de ce potentiel électrique avec une direction, nous avons un potentiel vectoriel. En cas de notre issue de 110 volts, si nous changeons la direction de disent l'horizontal au vertical, nous pouvons doubler notre potentiel à 220 volts. Donc, la direction est importante pour la création de n'importe quel champ magnétique; ils tous émergent d'un potentiel vectoriel magnétique où la direction joue un rôle critique.

L'illustration suivante compare MEG avec notre exemple de barrique de pluie pour la compréhension d'un profane très général de comment MEG travaille et pourquoi le potentiel vectoriel magnétique est si important. (Tenez s'il vous plaît dans la tête qu'une explication précise exigerait un article plusieurs fois la grandeur de celui-ci, donc nous peindrons juste notre peinture avec de larges coups de brosse libéraux pour maintenant.)

  • (A) Un réservoir extérieur attend jusqu'à ce que le système ne soit apporté dans le mouvement et commence ensuite à travailler pour restituer la balance qui est cassée en suçant le tuyau de siphon. Pour la barrique de pluie c'est la pluie remplissant la barrique font marche arrière, pour MEG c'est le potentiel vectoriel convertissant son énergie en champ magnétique à l'intérieur du sentier fermé.

  • (B) Cela ajoute un champ supplémentaire au champ d'aimant à l'intérieur du circuit fermé.

  • (C) Essentiellement les actuateurs travaillent comme le tuyau de siphon dans notre exemple de barrique de pluie et en changeant la direction de l'eau il crée un potentiel vectoriel extérieur.

  • (D) Par conséquent, le sentier fermé commence à communiquer avec le champ magnétique à l'intérieur, compenser pour le changement dans la situation. Il donne l'énergie au champ magnétique à l'intérieur de pathntial fermé.
  • (E) Nous pouvons alors taper cette énergie des collectionneurs et nous constatons que plus d'énergie électrique part les collectionneurs que la quantité que nous installons par les actuateurs. Donc l'énergie du champ potentiel vectoriel à l'extérieur du sentier fermé ‘coule vers le siphon' pour corriger le 'niveau de terrain' de nouveau. Si nous conduisons la partie de cette énergie en arrière dans les actuateurs de nouveau, le reste de cela est le flux libre! Flux libre ?
Avec le flux d'énergie de MEG devient vraiment le produit de résultat ou la production au lieu d'un dérivé inutilisé comme avec le combustible fossile a actionné des systèmes comme les moteurs automobiles Ce qui a eu l'habitude d'être inutilisé est la production maintenant utile, comme l'électricité d'aujourd'hui tirée du filet pour allumer nos maisons.

Dans ce respect, MEG forme une nouvelle façon de regarder le flux d'énergie et si vous arrivez à installer MEG à côté de votre maison, il exigera beaucoup moins d'énergie de vous fournir avec beaucoup plus d'électricité. Par conséquent, vos prix d'énergie descendront considérablement.

Pourquoi MEG est Communément Mal comprise
MEG utilise un flux d'énergie de contribution pour convertir une bien plus grande quantité de flux d'énergie jusqu'ici inutilisable dans une forme contrôlable et plus convenable. Cela peut quitter quelques gens supprimant leurs têtes parce que c'est un nouveau tortillon entier sur le flux. Pour ceux qui sont familiers avec les principes de conservation d'énergie cela représente un changement de paradigme de la réflexion qui peut défier des années de pensée lourdement indiquée des systèmes fermés. Et voici le fait de se frotter. Les principes rigides de conservation d'énergie font une demande seulement aux systèmes fermés comme les moteurs d'auto, alors que MEG est un système ouvert.

Parce que MEG est un système ouvert, il peut transformer le flux en production parce que c'est un système de la balance avec le monde autour de cela et donc le fait de communiquer constamment avec l'environnement autour de cela! Cette voie, il peut s'ensuivre dans un FLIC qui est bien plus grand que l'unité. Un autre facteur qui le rend difficile pour les penseurs conventionnels de comprendre MEG est qu'il n'utilise pas le Calibre de Lorentz.

Quand Tom Bearden et son équipe de chercheurs ont découvert les principes derrière MEG quand ils ont voulu omettre un étalonnage communément connu d'un système électromagnétique, le soi-disant Calibre de Lorentz.

Le Calibre de Lorentz est essentiellement un choix libre de valeurs pour les paramètres donnés d'un système électrique; ce choix libre rend des mathématiques plus simples. En même temps pourtant il se débarrasse d'une gamme d'intéressants (comme cela se termine maintenant) les solutions d'un ensemble d'équations décrivant le même système. Cette gamme est la gamme d'états de non-équilibre.

En gardant MEG juste hors d'équilibre (de la balance) tout le temps, nous pouvons l'utiliser pour tirer une quantité gigantesque d'énergie d'un réservoir pour l'instant inutilisable dans une forme convenable. Essentiellement, c'est que MEG est de.

Problèmes Potentiels Avec le MEG
Nous savons que MEG travaille, mais c'est aussi de l'intérêt de voir juste combien il peut faire. La plupart d'entre vous s'intéresseront probablement pour savoir si MEG peut le pouvoir une maison. Pouvons-nous l'augmenter sans une limite, ou pourrait un tel artifice même le pouvoir une ville ?

L'échelle de beaucoup d'artifices est seulement limitée par les questions de design pratiques. MEG a besoin d'un aimant permanent aussi bien qu'une matière nano-cristalline confinant complètement les boucles de champ magnétique qui quittent cet aimant. Il a aussi besoin des bobines de production et d'une contribution. Les courants électriques parcourant des fils produiront la chaleur, qui devra être traitée à un assez haut pas, mais autre que cela, la grandeur potentielle et la productivité du système sont pratiquement illimités. Ce type de générateur devrait a priori être escalable au niveau de bloc de ville.

Il y a, pourtant, les effets indésirables possibles à son opération, à laquelle nous voulons jeter un coup d'oeil plus proche avant le fait de commencer à faire marcher MEG pour une ville.

Quelques problèmes pourraient exister pour MEG. En ce moment, c'est le territoire inexploré, mais nous devons considérer la possibilité qu'au-dessus d'un certain niveau, le champ potentiel vectoriel ne peut pas réarranger son énergie assez vite pour les conditions de travail pour rester intact, en faisant ainsi MEG rater. Pour complètement illustrer cette possibilité, revisitons certains des termes fondamentaux que nous avons discutés plus tôt dans cet article.

Champs Magnétiques
L'énergie conservée dans le champ magnétique et le champ potentiel vectoriel peut communiquer avec la conduction du matériel à l'extérieur de MEG aussi, en produisant des champs magnétiques secondaires et des courants électriques.

Il y a plus. Comme l'énergie laisse ses environs, la nouvelle énergie vient en coulant font marche arrière. Nous ne savons pas si le pas de cela est attaché à une limite. Il peut avoir des effets indésirables qui sont actuellement inconnus à nous. Quelques réactions pessimistes ont même parlé d'une modification du continuum fois d'espace entourant MEG. Ce serait une conséquence sérieuse effectivement, mais nous n'en avons vu aucune preuve pour l'instant.

En plus de l'argument présenté ci-dessus il y a la matière de bobine qui doit complètement contenir le champ de l'aimant permanent et le champ supplémentaire produit pendant l'action réciproque. Plus grande MEG aura aussi besoin d'un plus fort champ magnétique. Juste combien de matière de bobine peut-elle prendre avant que le champ commence à diviser la matière lui-même ? Cette plus grande MEG peut avoir besoin du matériel de superconduction pour gagner ce plus fort champ magnétique. Il y aura des conditions supplémentaires qui sont imposées par cette matière. Nous devons maintenir cette supraconductivité pour prévenir le dommage à la matière.

Pourtant, de plus forts champs magnétiques posent vraiment un risque de santé. Pour cette raison, la plupart des personnes ne veulent pas vivre sous ou très près de hautes lignes électriques de voltage. Ils portent de forts champs électromagnétiques autour d'eux aussi. Il est pourtant possible de protéger des champs magnétiques.

Le Fait de Protéger
Si quelqu'un devait éteindre le signal de contribution à grande MEG, le champ peut ne pas mourir immédiatement, qui s'ensuivrait dans une pointe de terrain comme il suit le costume aux signaux. Alors les pouls d'EM peuvent survenir, qui sont très destructifs à tout l'équipement électronique. Ces pouls d'EM sont si destructifs en fait, que certaines nations ont accompli la recherche étendue dans leur application possible comme une arme.

Une cage Faraday formerait le "fossé autour du lac" pour MEG. C'est un cas en métal entourant le champ magnétique plus MEG complètement. À l'exception de forts effets d'EMP il gardera un champ semi-régulier contenu pour qu'aucun effet négatif extérieur ne se produise. Ainsi au cours de l'opération normale, MEG peut être protégée tout à fait facilement. Les moments inquiétants se produisent en allumant MEG ou de. Comment le fait de protéger affectera-t-il la capacité de l'énergie potentielle vectorielle de terrain de se reconstituer comme l'énergie laisse l'unité ?
br /> Nous Devons Poursuivre la Prudence
La fin, nous pouvons dire que MEG est un moyen de verser l'énergie d'un réservoir gigantesque avec le petit effort remarquable. Le résultat est énergie presque illimitée à pratiquement aucun prix. Le seul désavantage connu dans l'état actuel de recherche consiste en ce que sur une grande échelle déplaisante, durement pour contrôler les effets indésirables peut élever leurs têtes vilaines. Donc pendant que MEG représente un brisement de terre et une nouvelle technologie innovatrice il ne devrait pas être expédié au marché sans mise à l'essai exhaustive.




Le Générateur Immobile de Valeri Ivanov.   Il y a d'autres artifices qui sont très près de la construction de MEG. Un d'entre ceux-ci a été affiché sur un site Internet bulgare et il a été traduit dans l'anglais sur la page Web qui est trouvée ici, elevé par Valeri Ivanov en 2007. Les vies de Valeri dans Elin Pelin, la Bulgarie et son générateur immobile ont la performance COP=2.4. Vidéos ici et ici asont pour son design et le forum ici a essayé de copier son artifice.

Il est montré qu'un artifice efficace peut être construit d'un aimant permanent, un tore et un joug en fer stratifié. L'arrangement est affiché comme cela :


Quand le rouleau de contribution est circulé avec une tension d'entrée, il provoque un renversement de flux dans la charpente autour dont le rouleau de production est la blessure, en produisant une production électrique. Il y a un autre forum rattaché à cela et MEG mieux connue de Tom Bearden qui peut être trouvé ici où ce message particulier déclare que l'artifice de Valeri peut être fait pour travailler sur les fréquences aussi bas que 50 Hz et peut utiliser des composantes de charpente en fer stratifiées standard et produit le Coefficient de Performance symbolise jusqu'à 5.4 (c'est-à-dire la puissance de sortie est plus de cinq fois le pouvoir de contribution).



Les Artifices de Hans Coler
Hans Coler a développé un artifice qu'il a appelé le "Stromerzeuger" qui s'est composé d'un arrangement d'aimants, bobines et plaques de cuivre avec un circuit primaire actionné par une petite batterie. La production du circuit secondaire a été utilisée pour allumer une banque de lampes et il a été réclamé que la puissance de sortie était plusieurs fois le pouvoir de contribution et pourrait continuer indéfiniment.

L'appareil se compose principalement des canettes raccordées de deux parallèle qu'être bi-filar blesse d'une façon spéciale, sont aimantément liés. Une de ces canettes est composée des draps couleur cuivre (on appelle la canette la 'canette de plaque’). L'autre est rendu des fils isolés raccordés d'un certain nombre de parallèle fin (appelé ‘la sinuosité de canette’), en étant parallèle aux plaques, à de petits intervalles. Les deux canettes peuvent être nourries par batteries séparé (6 volts, 6.5 AHr ont été utilisés). Au moins deux batteries sont nécessaires pour recevoir l'appareil opérant, mais par la suite, une batterie peut être enlevée.

Les canettes sont arrangées dans deux moitiés de chacun par le bi-filar windings. La canette de plaque contient aussi des baguettes en fer avec les connexions métalliques en argent. Ces baguettes sont aimantées par une batterie spéciale par le stimulant windings. Électriquement, la sinuosité de stimulant est complètement isolée de l'autre windings. Hans a dit que la production d'énergie survient principalement dans ces baguettes en fer et la sinuosité des canettes joue un rôle essentiel dans le processus.

Il devrait être dit en passant que le circuit de canette est actionné en haut d'abord. Au départ, il a pris un courant de 104 maman. Les plaques et les circuits de stimulant sont alors allumés simultanément. Quand c'est fait, le courant dans le circuit de canette est tombé de 104 maman à environ 27 mA.

Il est suggéré qu'un électron est pas seulement considéré comme une particule négativement chargée, mais aussi comme un pôle magnétique Sud. L'élément Stromerzeuger fondamental est ce d'un circuit secondaire ouvert, la capacité chargée, inductivement couplé à un circuit primaire. La caractéristique originale est que les capacités sont raccordées au coeur secondaire par les aimants permanents comme montré ici:



Il est réclamé qu'en fait d'allumer le circuit primaire, “la séparation de charges” survient avec M1 devenant de façon positive chargée et M2 devenant négativement chargée et que ces charges sont “aimantément polarisées” quand ils se forment, par suite de la présence des aimants. Quand le circuit primaire est éteint, des "” écoulements actuels faisants marche arrière dans le secondaire mais les aimants “n'exercent pas d'effet polarisant sur ce renversement”.

Deux des éléments fondamentaux montrés ci-dessus sont placés ensemble en prenant des dispositions de stade doubles avec les plaques de cuivre près ensemble.



Notez que la bobine M1 est inversé. Les aimants portent le courant et donc il serait raisonnable de supposer qu'ils sont des aimants en fer plutôt que ferrite, les aimants en fer étant il y a soixante ans communs, combiné avec le fait que les aimants ferrite n'accomplissent pas de types actuels et de néodyme n'étaient pas disponibles en 1925. Enroulements secondaires sont tant “enrouler qu'exactement égale dans une direction tel que, en fait d'allumer bobine primaire”, les électrons circulent de P1 à P2 et de F1 à F2. Encore une fois, c'est une affirmation plus particulière comme la direction du flux d'électrons n'est pas affectée par la direction d'enroulement de la bobine, ce qui porte à croire que la personne qui fait le rapport savait peu de choses sur les circuits. Il est donc fort probable, que le bref rapport qui a survécu jusqu'à aujourd'hui, est très vague et manquant de détails essentiels, les diagrammes n'indiquant pas les enroulements bi filaire et les longueurs de fil rectiligne mentionnés précédemment.

Un des très rares déclarations est que le circuit de F1/F2 induit uniquement l'effet et que le surplus d'énergie proviennent du circuit de P1/P2. Il s'agit de l'entente de travail de base. Plusieurs de ces deux étapes peuvent être ajoutés pour fournir des sorties plus élevés, avec leurs sorties branchées en parallèle pour le plus courant.

Le document d'origine, avec ambiguïté magistrale, déclare que, pour que cet arrangement, deux des circuits originaux sont placées l'une au-dessus de l'autre et dessine rapidement l'entente, montrant les pôles d'aimant M1 inversées, bien sûr, contredit ce qui a juste. Ainsi, il n'est pas clair que si le diagramme ou l'instruction est correcte, mais il est probable que le diagramme est juste.


Pour là pour être n'importe quel type de sortie continue d'un transformateur, l'entrée ne peut pas être DC en dépit du fait que piles sèches batteries ont été utilisés pour alimenter les circuits (même si la sortie pourrait s'élever à six kilowatts). Coler a déclaré que ses recherches indiquent que les aimants permanents en fait osciller à environ 180 kHz. Si c'est exact, alors qui pourrait expliquer l'induction magnétique produite dans le circuit. Si ce n'est pas ce qui est invoqué dans ce circuit, puis les piles doivent être connectés et déconnectés sans interruption, et la technologie étant simple à cette époque, semble probable qu'un relais aurait été câblé à siffler comme dans les premières cloches électriques. Bien que cet arrangement ont été utilisé pour connecter et déconnecter les batteries avec un contact de relais, la bobine du relais aura généré sharp impulsions de haute tension, générant des courtes impulsions magnétiques de type qui entraîne un afflux d'électricité froid dans le circuit de l'énergie de fond ambiant local.

Subsidiairement, même si elle n'est pas mentionné ou suggéré, que la connexion aurait pu être faite à l'aide d'un relais qui a eu un seul contact, dans ce cas, le contre-électromotrice de la bobine du relais peut ont nourri des impulsions de haute tension directement dans le circuit. C'est, bien sûr, la spéculation juste mal informés. L'arrangement a pu:



Dans chaque cas, le courant de la batterie coule le contact du relais normalement fermé, alimenter le relais d'enroulement, qui ouvre le contact de l'interrupteur, débrancher le relais et donc fermer le contact de l'interrupteur à nouveau. Cela provoque une impulsion rapide de la tension de la batterie et la bobine du relais génère des tensions élevées, typiquement de quelques centaines de volts. Si la connexion de circuit comme indiqué dans le premier arrangement, puis lorsque le commutateur de relais s'ouvre, haute tension contre-électromotrice impulsions seront nourris au circuit. En revanche, si un relais avec deux contacts distincts est utilisé, le deuxième contact de relais peut servir à connecter le circuit de la batterie et débranchez à nouveau dans une séquence très rapide. Il y a un groupe de personnes à cette forum qui s'efforcent de faire une version opérationnelle de ce dispositif. Informations sur les périphériques de Coler sont présentées clairement à cette site Internet.


Patrick Kelly
www.free-energy-info.tuks.nl
www.free-energy-info.com

闽ICP备2022006709号