何塞·路易斯·加西亚·德尔卡斯蒂略的自供电发电机
本帖最后由 能量海 于 2017-8-8 03:05 编辑
第四章:重力脉冲系统
何塞•路易斯•加西亚•德尔卡斯蒂略的自供电发电机
1998年,何塞•路易斯•加西亚•德尔卡斯蒂略(José Luis García del Castillo)被授予了西班牙专利ES2119690。我怀疑专利中所示的辅助发电机都只是为了要使专利审查员受理专利,而并非真正需要。如果我是对的,那么该设计虽然形式更为紧凑,但几乎与查斯•坎贝尔的设计是一样的:
正如雅各布•比耶尔柯鲁指出的,能量增益是通过由皮带轮“A”连接到飞轮轴,大于皮带轮连接到发电机轴“B”而产生的惯性加速度来实现的。如图所示,它们在直径上有很大的不同。这里是对专利的尝试性翻译:
专利:ES 2119690 日期:1998年10月1日
发明人:何塞•路易斯•加西亚•德尔卡斯蒂略
自持能量再生系统
摘要
系统包括一个电动马达传动(1),一个主发电机(2),辅助发电机(3),电池(4),充电调节器(5),和一个速度调节器(6)。系统旨在产生其自身的运行功率,并为其它用途提供一个额外供应源。
描述
发明领域
本发明涉及再生能源的自给自足的自持系统,它还有另外的几个优点如下:
发明背景
人们多年来已经知晓如何构建可以产生电流的机器。它们均被冠以“电动发电机组”的属名,包括旋转电机——由于磁场和移动导体之间交替作用的结果,把机械功率转换成电功率。
然而,发电机的不同类型构成的当前的技术发展水平,还需要借助于马达,把机械功率转换成电能,并且马达要有一个独立的功率源,必须是持续供给的。
因此,一个系统能够产生其自身的功率源,并提供额外功率源用于其它用途,在当前的技术发展水平尚未见到。
发明摘要
申请人为本专利设计过一个自持的能量再生系统,除了产生可用于电网的过剩能量外,还能生成其自身的运行能量,无论是在家庭、办公室、仓库……等等,对所有电器装置都要用的电压型换流器,而利用它则可以在难以安装电网的地方作为一种替代能源——不是太阳能或风能——来使用。
其它应用将是在汽车领域,通过将系统连接到推进发动机而作为摩托车、汽车等的动力源,并由此实现车辆的必要的运动。
大体来说,系统包括以下基本组件:
1. 一台电力牵引马达;
2. 一台主发电机;
3. 各种辅助发电机;
4. 一个电池或蓄电池;
5. 一个负载和输出功率控制器;
6. 一个速度控制器;
电驱动马达提供系统运行所需的必要的电动势,发电机向系统提供动力、给电池充电并在需要时给牵引马达提供直接动力,或者如果电池满充,则只给电机供电。它可以通过使用滑轮和皮带、齿轮或任何其它手段提供直接的机械功率。
辅助发电机负责提供备用电源,并能用螺旋辊、或通过风的作用以涡轮机的形式、或通过齿轮连接到牵引电机的飞轮上。
电池的作用是提供启动马达所需的动力,并且,运行期间供给发动机可能需要的任何额外的功率。电池通过由电机直接驱动的主发电机再充电。充电控制器的功能是防止电池过度充电。调速器的作用是控制驱动马达的速度。
本发明的优点如上所述,以及对下面详述的系统的实施例的认识,以便于对上述特征的理解,并同时介绍目前规格之外的各种不同。但应当理解的是,附图只是通过示例的方式而没有限制本发明在任何方面的范围,即只是结构的一个形式的一个例子。
图示简述
在图示中:
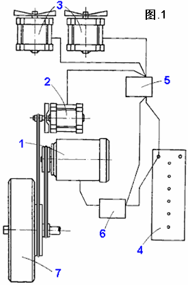
图.1是系统作为本发明的一个实施例的示意图。
图.2显示的是本发明的一个可选实施。
本发明优选实施的描述
如图所示,能量再生的自持系统,根据本专利的一个实施,包括一个电力牵引电机(1)、一个主发电机(2)、若干辅助发电机(3)、电池或蓄电池(4)、充电控制器和电源(5)、电机调速器(6)。
电传动马达(1)为运行系统提供了必要的电动势,而其电压和功率是按照你想要建构的系统的大小来选择的。
主发电机(2)为系统提供电源,首先,对电池(4)进行再充电;其次,如果需要,直接给电机(1)功率。当电池(4)充满电,其电荷通过电机的动力来维持——通过合适的皮带轮或机械功率的传动装置的其它方法来提供。
发电机的旋转速度必须通过电机和发电机之间的传动装置的选择来配置,这样,当电机在其最大速度下并消耗其最大电流运行时,发电机旋转得足够快,以提供该电流。主发电机(2)将因此电连接到电池(4)和机械连接至电机(1)。辅助发电机(3)以涡轮机的形式,由风力作用或通过齿轮连接到飞轮(7)运行,由马达(1)驱动,如图.2所示。这些辅助发电机(3)为系统提供备用电源。
电池(4)的容量必须超出电机(1)的最大功率,而其在系统中的作用是提供启动电机(1)所需的功率,并提供电机(1)运行中可能需要的任何额外的能量。电池由以电机(1)驱动的主发电机(2)直接再充电。
充电控制器和配电器(5)定位在主发电机(2)、辅助发电机(3)和电池(4)之间。其职责是调节电池(4)的电流消耗,以防止电流消耗过大。当需要额外的电流时,它还分配任何剩余功率作为发电机(2)的直接馈电和驱动电机(1)。辅助发电机 (3) 即提供额外功率给电机 (1),或者其功率输出也可用于任何其它功率需求。
速度调节器(6)旨在调节电机(1)的速度,这种调整是渐进的,并被调整到适宜于系统的使用。
系统可以有多种和不同的应用,值得注意的是其中用在汽车领域的,可作为一种用于推进汽车和其它机动车辆的手段,以马达(1)连接到推进车辆的主动轮。在这些应用中,辅助发电机(3),可以安装螺旋辊或成涡轮状,以使得通过的风提供额外的能量给电气系统。对于电动车辆,只用主发电机连接到主动轮。
系统的其它应用是在电源领域,即电网的应用。采用这种专利系统的优点是电源实际上是取之不尽、用之不竭和清洁的,运行过程中也仅只是零件磨损和损耗。
其运行如下:
电池(4)提供启动电机(1)所需要的能量,并在系统运行期间的特定时间留出所需的增加电输入的可能性。电池(4)通过调速器(6)电连接到电机(1),它通过主发电机(2)由负载分配控制器(5)送入。发电机(2)由传动马达(1)直接驱动,而从一个组件到另一个组件的传动是通过齿轮、皮带和皮带轮,或任何其它的常规手段。
辅助发电机(3)电连接到充电控制器(5)和电池(4),而它们的运动由风产生自身的能量,以涡轮机叶片或螺旋辊、或者通过直接连接到电机(1)的飞轮(7)来转动。通过这些辅助发电机(3)产生的能量可被用于给别的电池充电,以供以后使用,或者直接用来给其它电气设备或电力装置网络供电。通过电压转换器把系统产生的电压转换成适合于在其它设备中使用的电压。
第四章:重力脉冲系统
何塞•路易斯•加西亚•德尔卡斯蒂略的自供电发电机
1998年,何塞•路易斯•加西亚•德尔卡斯蒂略(José Luis García del Castillo)被授予了西班牙专利ES2119690。我怀疑专利中所示的辅助发电机都只是为了要使专利审查员受理专利,而并非真正需要。如果我是对的,那么该设计虽然形式更为紧凑,但几乎与查斯•坎贝尔的设计是一样的:
正如雅各布•比耶尔柯鲁指出的,能量增益是通过由皮带轮“A”连接到飞轮轴,大于皮带轮连接到发电机轴“B”而产生的惯性加速度来实现的。如图所示,它们在直径上有很大的不同。这里是对专利的尝试性翻译:
专利:ES 2119690 日期:1998年10月1日
发明人:何塞•路易斯•加西亚•德尔卡斯蒂略
自持能量再生系统
摘要
系统包括一个电动马达传动(1),一个主发电机(2),辅助发电机(3),电池(4),充电调节器(5),和一个速度调节器(6)。系统旨在产生其自身的运行功率,并为其它用途提供一个额外供应源。
描述
发明领域
本发明涉及再生能源的自给自足的自持系统,它还有另外的几个优点如下:
发明背景
人们多年来已经知晓如何构建可以产生电流的机器。它们均被冠以“电动发电机组”的属名,包括旋转电机——由于磁场和移动导体之间交替作用的结果,把机械功率转换成电功率。
然而,发电机的不同类型构成的当前的技术发展水平,还需要借助于马达,把机械功率转换成电能,并且马达要有一个独立的功率源,必须是持续供给的。
因此,一个系统能够产生其自身的功率源,并提供额外功率源用于其它用途,在当前的技术发展水平尚未见到。
发明摘要
申请人为本专利设计过一个自持的能量再生系统,除了产生可用于电网的过剩能量外,还能生成其自身的运行能量,无论是在家庭、办公室、仓库……等等,对所有电器装置都要用的电压型换流器,而利用它则可以在难以安装电网的地方作为一种替代能源——不是太阳能或风能——来使用。
其它应用将是在汽车领域,通过将系统连接到推进发动机而作为摩托车、汽车等的动力源,并由此实现车辆的必要的运动。
大体来说,系统包括以下基本组件:
1. 一台电力牵引马达;
2. 一台主发电机;
3. 各种辅助发电机;
4. 一个电池或蓄电池;
5. 一个负载和输出功率控制器;
6. 一个速度控制器;
电驱动马达提供系统运行所需的必要的电动势,发电机向系统提供动力、给电池充电并在需要时给牵引马达提供直接动力,或者如果电池满充,则只给电机供电。它可以通过使用滑轮和皮带、齿轮或任何其它手段提供直接的机械功率。
辅助发电机负责提供备用电源,并能用螺旋辊、或通过风的作用以涡轮机的形式、或通过齿轮连接到牵引电机的飞轮上。
电池的作用是提供启动马达所需的动力,并且,运行期间供给发动机可能需要的任何额外的功率。电池通过由电机直接驱动的主发电机再充电。充电控制器的功能是防止电池过度充电。调速器的作用是控制驱动马达的速度。
本发明的优点如上所述,以及对下面详述的系统的实施例的认识,以便于对上述特征的理解,并同时介绍目前规格之外的各种不同。但应当理解的是,附图只是通过示例的方式而没有限制本发明在任何方面的范围,即只是结构的一个形式的一个例子。
图示简述
在图示中:
图.1是系统作为本发明的一个实施例的示意图。
图.2显示的是本发明的一个可选实施。
本发明优选实施的描述
如图所示,能量再生的自持系统,根据本专利的一个实施,包括一个电力牵引电机(1)、一个主发电机(2)、若干辅助发电机(3)、电池或蓄电池(4)、充电控制器和电源(5)、电机调速器(6)。
电传动马达(1)为运行系统提供了必要的电动势,而其电压和功率是按照你想要建构的系统的大小来选择的。
主发电机(2)为系统提供电源,首先,对电池(4)进行再充电;其次,如果需要,直接给电机(1)功率。当电池(4)充满电,其电荷通过电机的动力来维持——通过合适的皮带轮或机械功率的传动装置的其它方法来提供。
发电机的旋转速度必须通过电机和发电机之间的传动装置的选择来配置,这样,当电机在其最大速度下并消耗其最大电流运行时,发电机旋转得足够快,以提供该电流。主发电机(2)将因此电连接到电池(4)和机械连接至电机(1)。辅助发电机(3)以涡轮机的形式,由风力作用或通过齿轮连接到飞轮(7)运行,由马达(1)驱动,如图.2所示。这些辅助发电机(3)为系统提供备用电源。
电池(4)的容量必须超出电机(1)的最大功率,而其在系统中的作用是提供启动电机(1)所需的功率,并提供电机(1)运行中可能需要的任何额外的能量。电池由以电机(1)驱动的主发电机(2)直接再充电。
充电控制器和配电器(5)定位在主发电机(2)、辅助发电机(3)和电池(4)之间。其职责是调节电池(4)的电流消耗,以防止电流消耗过大。当需要额外的电流时,它还分配任何剩余功率作为发电机(2)的直接馈电和驱动电机(1)。辅助发电机 (3) 即提供额外功率给电机 (1),或者其功率输出也可用于任何其它功率需求。
速度调节器(6)旨在调节电机(1)的速度,这种调整是渐进的,并被调整到适宜于系统的使用。
系统可以有多种和不同的应用,值得注意的是其中用在汽车领域的,可作为一种用于推进汽车和其它机动车辆的手段,以马达(1)连接到推进车辆的主动轮。在这些应用中,辅助发电机(3),可以安装螺旋辊或成涡轮状,以使得通过的风提供额外的能量给电气系统。对于电动车辆,只用主发电机连接到主动轮。
系统的其它应用是在电源领域,即电网的应用。采用这种专利系统的优点是电源实际上是取之不尽、用之不竭和清洁的,运行过程中也仅只是零件磨损和损耗。
其运行如下:
电池(4)提供启动电机(1)所需要的能量,并在系统运行期间的特定时间留出所需的增加电输入的可能性。电池(4)通过调速器(6)电连接到电机(1),它通过主发电机(2)由负载分配控制器(5)送入。发电机(2)由传动马达(1)直接驱动,而从一个组件到另一个组件的传动是通过齿轮、皮带和皮带轮,或任何其它的常规手段。
辅助发电机(3)电连接到充电控制器(5)和电池(4),而它们的运动由风产生自身的能量,以涡轮机叶片或螺旋辊、或者通过直接连接到电机(1)的飞轮(7)来转动。通过这些辅助发电机(3)产生的能量可被用于给别的电池充电,以供以后使用,或者直接用来给其它电气设备或电力装置网络供电。通过电压转换器把系统产生的电压转换成适合于在其它设备中使用的电压。
上一篇
泰德·爱韦特切割电机
下一篇
威尔逊自供电直流发电机
上一篇:泰德·爱韦特切割电机
下一篇:威尔逊自供电直流发电机
